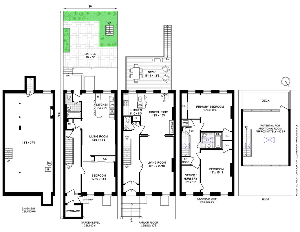
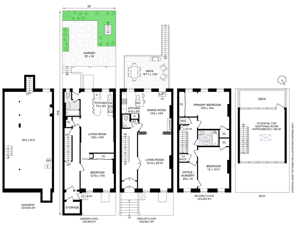
3,200 ft²
$1,007 per ft²
11 rooms
4 beds
2.5 baths
Two-family home
- Park Slope
Resale
recorded sale
Sold on 10/26/2023
Verified by closing records
Last listed for $2,999,500
Listed by
Owner
This home has been saved by 223 users.
Listing by Owner
Common charges
Not applicable
Estimated payment
$15,429/mo
Legal disclaimerAll calculations are estimates provided by StreetEasy for informational purposes only. Actual amounts or financing terms may vary. Please contact your mortgage provider for specifics.Taxes
$537/mo
Tax abatement
No info
About
Buyer’s agent
description
Sunshine floods this 20-foot-wide Park Slope residence built in 1886.
The 3-light filled story two family brick federal home is located on tree lined, coveted Carroll Street. The generous footprint is currently figured as an upper duplex and high-income garden floor rental and can be easily converted to a single-family home where you can enjoy all the spaciousness for yourself.
Policies
Sorry, policy info isn’t available right now. Check back later.
Home features
Dishwasher
Fireplace
Hardwood floors
Private outdoor space
Garden, Roof rights, Terrace
Washer/dryer
Building amenities
Services and facilities
Laundry in building
Wellness and recreation
No info on wellness and recreation
Shared outdoor space
No info on shared outdoor space
About the building
610 Carroll Street
610 Carroll Street, Brooklyn, NY 11215
2 units
3 stories
1901 built
For sale
0 available units for saleFor rent
0 available units for rentDocuments and permits
View documents and permitsProperty history
- Price Change: No changes
- Days on market: 29 daysThis is the number of days the listing has been on StreetEasy.
| Date | Price | Event |
|---|---|---|
10/26/2023 | $3,225,000 | Sold by Owner |
7/16/2023 | $2,999,500 | No longer available |
6/17/2023 | $2,999,500 | Listed by Owner |
Past listing photos
Sign in to take a closer look at how this home compares to similar homes.
Explore Park Slope
Transit
| Location | Distance |
|---|---|
Rat Union St | 0.13 miles |
FGRat 9th St | 0.47 miles |
BQat 7th Av | 0.51 miles |
Fat 4th Av | 0.52 miles |
23at Bergen St | 0.52 miles |
About Park Slope
Rental prices shown are base rent before any fees. Visit listings for cost and fees breakdown.
SalesMedian asking price
4 beds
$3.6M
RentalsMedian asking base rent
4 beds
$7,400
Park Slope has a tranquil, easygoing vibe and can almost feel suburban. Strollers and children of all ages are a constant presence on sidewalks, as are shoppers patronizing local boutiques and dog walkers heading up to the park. Residents are Brooklynites through and through and tend to be socially conscious, artistically minded, and committed to their community. At night, a casual restaurant scene comes alive. For anyone looking for a night out, there are plenty of beer gardens and wine bars to patronize, especially in the South Slope, but don't go looking for dance clubs.
Learn more about Park Slope

































































































































