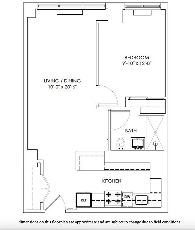
- ft²
3 rooms
1 bed
1 bath
Condop
- Forest Hills
Sponsor unit
Sponsor unitA unit being sold for the first time. It’s typically owned by the building. For condos, this is often the developer. For co-ops, this is often the building’s original owner before it went co-op.
recorded sale
Sold on 1/16/2018
Verified by closing records
Last listed for $399,000
Seller's agents
Lane Towers
Nu Place Realty
This home has been saved by 137 users.
Listing by Nu Place Realty, Tradename Broker | Brokerage Listing ID: 1124
Maintenance fees
$797/mo
Estimated payment
$2,849/mo
Legal disclaimerAll calculations are estimates provided by StreetEasy for informational purposes only. Actual amounts or financing terms may vary. Please contact your mortgage provider for specifics.Taxes
Included in maintenance fees
Tax abatement
No info
About
Seller’s agent
description
Luxury living begins at Lane Towers with newly crafted 1, 2, and 3 bedroom residences in the heart of Forest Hills.
Each residence at Lane Towers is renovated with superior fixtures and appliances, designed with clean lines and modern sophistication, central heat & air conditioning, including 5 wide tongue and groove hickory wood plank flooring. The modern gourmet kitchens marry form and function.
Policies
Sorry, policy info isn’t available right now. Check back later.
Home features
Dishwasher
Private outdoor space
Terrace
Building amenities
Services and facilities
Bike room
Doorman
Full-time
Elevator
Laundry in building
Live-in super
Package room
Parking
Garage
Storage space
Wellness and recreation
No info on wellness and recreation
Shared outdoor space
Roof deck
About the building
Lane Towers
107-40 Queens Boulevard, Forest Hills, NY 11375
162 units
18 stories
1965 built
For sale
7 available units for saleFor rent
2 available units for rentDocuments and permits
View documents and permitsProperty history
- Price Change: No changes
- Days on market: 85 daysThis is the number of days the listing has been on StreetEasy.
| Date | Price | Event |
|---|---|---|
1/16/2018 | $404,686 | Sold by Nu Place Realty |
5/6/2017 | $399,000 | In contract |
2/10/2017 | $399,000 | Listed by Nu Place Realty |
Past listing photos
Sign in to take a closer look at how this home compares to similar homes.
Explore Forest Hills
Transit
| Location | Distance |
|---|---|
| under 500 feet |
| 0.12 miles |
| 0.4 miles |
| 0.49 miles |
| 0.81 miles |
About Forest Hills
Rental prices shown are base rent before any fees. Visit listings for cost and fees breakdown.
SalesMedian asking price
1 bed
$339K
RentalsMedian asking base rent
1 bed
$2,600
Bisected by Queens Boulevard, Forest Hills offers two types of city living: Urban apartment complexes on one side and the other, the storied Forest Hills Gardens. Whichever side of the boulevard you live on, this suburban neighborhood is teeming with lots of public outdoor space. Another good to know, many residents own a car.
Learn more about Forest Hills















































































































































