Skip Navigation
StreetEasy
Advertise
Sign up / Log in
Gallery
Photos
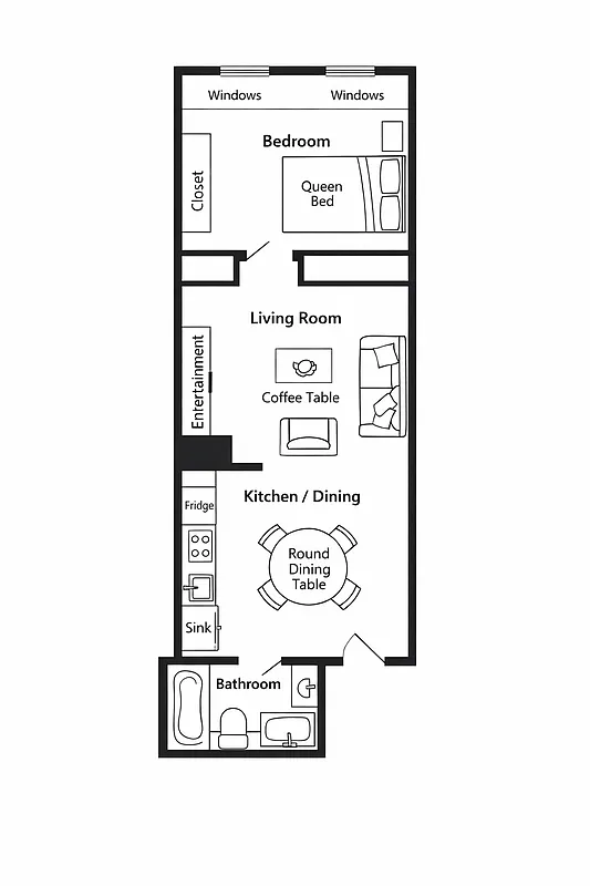
Floor plan
Map
Photos
Floor plan
Map
MAP
STREET VIEW
View on Google Maps