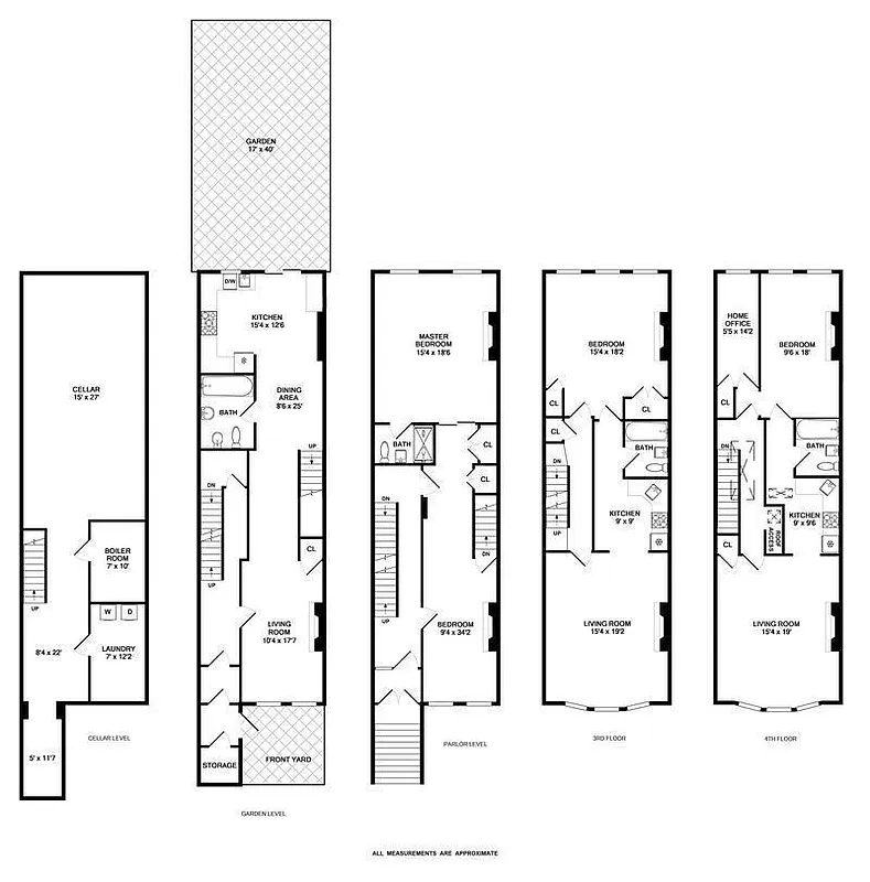
3,536 ft²
$677 per ft²
6 rooms
4 beds
4 baths
Three-family home
- Hamilton Heights
recorded sale
Sold on 1/19/2017
Verified by closing records
Last listed for $2,395,000
Seller's agent
Tamara Marotta
Douglas Elliman
This home has been saved by 36 users.
Listing by Douglas Elliman, Limited Liability Broker | Brokerage Listing ID: 2548703
Common charges
Not applicable
Estimated payment
$12,701/mo
Legal disclaimerAll calculations are estimates provided by StreetEasy for informational purposes only. Actual amounts or financing terms may vary. Please contact your mortgage provider for specifics.Taxes
$369/mo
Tax abatement
No info
About
Seller’s agent
Buyer’s agent
description
IN CONTRACT -The splendor of Hamilton Heights- classic brownstone on a tree-lined block. Live/income producing or investment property, this legal three family offers huge potential. The vacant duplex, with its internal staircase, offers access to the large yard through French doors. Modern additions include a Chef's range and Jacuzzi.
Policies
Sorry, policy info isn’t available right now. Check back later.
Home features
Fireplace
Building amenities
Services and facilities
No info on services and facilities
Wellness and recreation
Hot tub
Shared outdoor space
No info on shared outdoor space
About the building
413 West 146th Street
413 West 146th Street, New York, NY 10031
3 units
3 stories
1920 built
For sale
0 available units for saleFor rent
0 available units for rentDocuments and permits
View documents and permitsProperty history
- Price Change: No changes
- Days on market: 2371 daysThis is the number of days the listing has been on StreetEasy.
| Date | Price | Event |
|---|---|---|
3/31/2017 | $0 | |
1/19/2017 | $2,395,000 | Sold by Douglas Elliman |
1/23/2017 | $2,395,000 | No longer available |
1/19/2017 | $2,395,000 | Sold by Douglas Elliman |
11/18/2016 | $2,395,000 | In contract |
Past listing photos
Sign in to take a closer look at how this home compares to similar homes.
Explore Hamilton Heights
Transit
| Location | Distance |
|---|---|
ABCDat 145th St | under 500 feet |
1at 145th St | 0.29 miles |
3at Harlem–148th St | 0.42 miles |
Cat 155th St | 0.42 miles |
BCat 135th St | 0.48 miles |







































































































































































































