$2,550
For Rent
Base rent only. For total monthly price and additional fees, see .
Rented 6/18/2023
- ft²
2 rooms
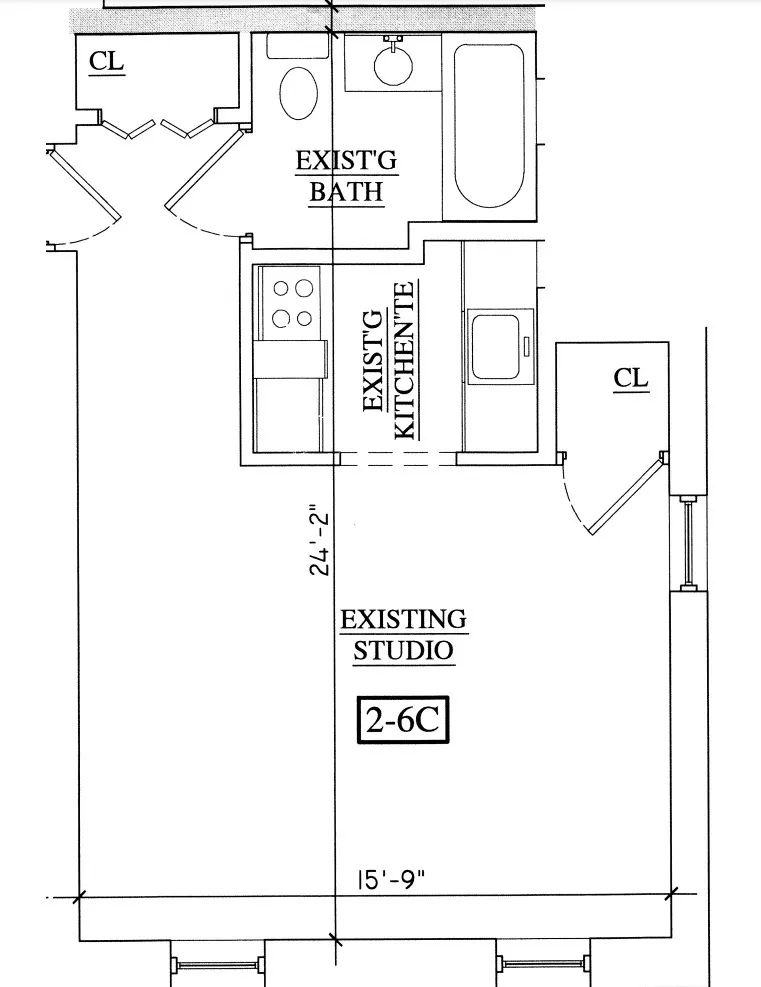
Studio
1 bath
Rental unit
- Brooklyn Heights
Under NYC law, you can't be charged a broker fee if you didn't hire a broker.
Listed By
This home has been saved by 15 users.
Listing by StayBK LLC, Limited Liability Broker, 521 Dekalb Avenue, Brooklyn, NY 11205
Searching with a housing voucher, like Section 8?
Unavailable
Rented on 6/18/2023
Days on market
3 days
Last price change
No changes
About
Welcome to 8 Clark Street
*HEAT & HOT WATER INCLUDED*
You’ll be able to enjoy access to on-site laundry & GYM. You’ll be located a short 5 minute walk to the subway and just 1 stop away from Manhattan. It’s perfectly situated half a block to the water.
Enjoy the beautiful views of the city from Brooklyn Bridge Park.
Policies
Sorry, policy info isn’t available right now. Check back later.
Home features
Hardwood floors
Building amenities
Services and facilities
Doorman
Virtual
Elevator
Laundry in building
Wellness and recreation
Gym
Shared outdoor space
No info on shared outdoor space
About the building
8 Clark Street
8 Clark Street, Brooklyn, NY 11201
42 units
6 stories
1931 built
Property history
Prices shown are base rent only. For total monthly price and additional fees, see .
| Date | Base rent | Event |
|---|---|---|
6/18/2023 | $2,550 | Rented by StayBK LLC |
6/16/2023 | $2,550 | In contract |
6/13/2023 | $2,550 | Listed by StayBK LLC |
12/3/2018 | $1,995 | |
9/17/2018 | $1,995 |
Past listing photos
Sign in to take a closer look at how this home compares to similar homes.
Explore Brooklyn Heights
Transit
| Location | Distance |
|---|---|
23at Clark St | 0.15 miles |
ACat High St | 0.26 miles |
R2345at Borough Hall/Court St | 0.3 miles |
Ferryat Fulton Ferry Landing | 0.35 miles |
Fat York St | 0.54 miles |
About Brooklyn Heights
Rental prices shown are base rent before any fees. Visit listings for cost and fees breakdown.
SalesMedian asking price
Studio
$467.5K
RentalsMedian asking base rent
Studio
$3,000
Brooklyn Heights is known for its gorgeous housing stock and its impressive backdrop. The Promenade is the neighborhood's most celebrated and popular public space, offering just about the best views of the Brooklyn Bridge and the Manhattan skyline that can be found. There, you're likely to find locals walking their Westies, kids zooming around on scooters, and tourists excitedly snapping pics — every one of them savoring the views from this prime perch of a neighborhood.
Learn more about Brooklyn HeightsSimilar homes
Prices shown are base rent only and don't include any fees. Visit each listing to see a complete cost breakdown.
Similar Homes looks at ad spend and other factors like location, price, and number of beds and baths.
































































