View this home virtually
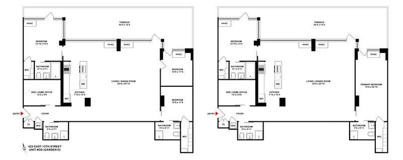
1,650 ft²
$1,181 per ft²
6 rooms
3 beds
3 baths
Condo
- East Village
Resale
reported sale
Sold on 8/8/2023
Not yet verified by closing records
Seller's agent
This home has been saved by 158 users.
Listing by Brown Harris Stevens, Real Estate Principal Office, 445 Park Avenue, New York, NY 10022
Common charges
$3,098/mo
Estimated payment
Taxes
$1,932/mo
Tax abatement
No info
About
Seller’s agent
description
AMAZING DEAL PRICE IMPROVEMENT!!!!
Situated in the heart of the East Village you will fall in love the moment you enter this wonderful 2 bedroom plus home office/den, 3 bathrooms residence which has been converted to 3 bedrooms (one interior) plus home office. Living comes easy as you enter a thoughtfully redesigned residence that is ideal for entertaining.
Policies
Pets allowed
Cats and dogs allowed
Home features
Private outdoor space
Garden
Building amenities
Services and facilities
Concierge
Doorman
Full-time
Elevator
Laundry in building
Live-in super
Wellness and recreation
Gym
Swimming pool
Shared outdoor space
Roof deck
About the building
The A Building
425 East 13th Street, New York, NY 10009
84 units
8 stories
2008 built
For sale
4 available units for saleFor rent
0 available units for rentDocuments and permits
View documents and permitsProperty history
- Price Change: ↓ $45,000 (-2.3%) on 10/20/22
- Days on market: 178 daysThis is the number of days the listing has been on StreetEasy.
| Date | Price | Event |
|---|---|---|
8/8/2023 | $1,950,000 | Sold by Brown Harris Stevens |
1/28/2023 | $1,950,000 | In contract |
1/4/2023 | $1,950,000 | Listed by Brown Harris Stevens |
12/14/2022 | $1,950,000 | Temporarily off market |
10/20/2022 | $1,950,000 | Price decreased by 2% |
Past listing photos
Sign in to take a closer look at how this home compares to similar homes.
Explore East Village
Transit
| Location | Distance |
|---|---|
Lat 1st Av | under 500 feet |
Lat 3rd Av | 0.31 miles |
6at Astor Place | 0.47 miles |
LNQRW456at 14th St–Union Square | 0.48 miles |
RWat 8th St–NYU | 0.54 miles |
About East Village
Rental prices shown are base rent before any fees. Visit listings for cost and fees breakdown.
SalesMedian asking price
3 beds
$2.99M
RentalsMedian asking base rent
3 beds
$6,995
Known and loved for being the birthplace of punk rock, the East Village is known for its vibrant restaurants and cocktail dens. During the day, however, the neighborhood slows down and has a tranquil feel. Meander down a leafy side street, and you'll happen upon plenty of prewar buildings and rusting fire escapes, which lend the East Village its old-fashioned charm.
Learn more about East Village









































































































