$4,200
For Rent
Base rent only. For total monthly price and additional fees, see .
Rented 2/19/2025
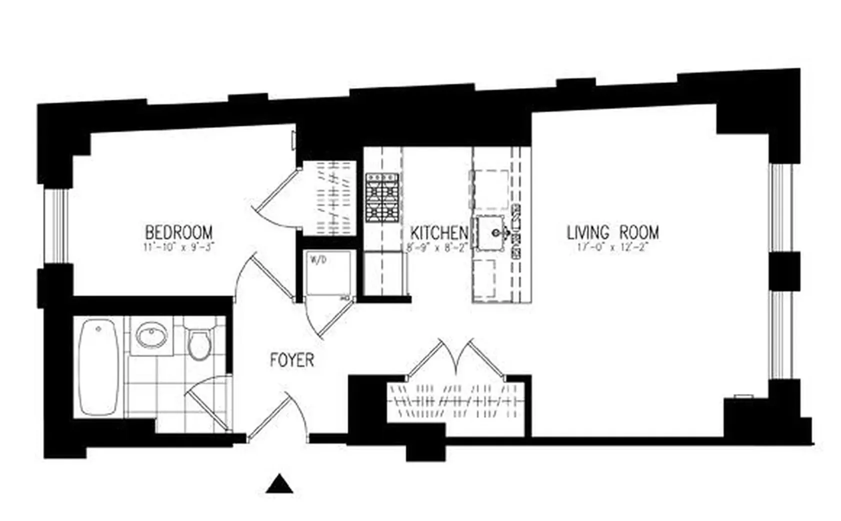
722 ft²
$69 per ft²
3 rooms
1 bed
1 bath
Condo
- Fort Greene
Under NYC law, you can't be charged a broker fee if you didn't hire a broker.
Listed By
This home has been saved by 123 users.
Listing by Compass, Corporate Broker, 110 5th Avenue, New York, NY 10011 | Brokerage Listing ID: 1732929961851382825
Unavailable
Rented on 2/19/2025
Days on market
64 days
Last price change
↑ $100 (+2.3%) on 1/29/25
About
Live at the Iconic One Hanson Place | $4,200/month
Step into Brooklyn's landmark living at the former Williamsburgh Savings Bank, now a premier luxury condominium. Anchoring the heart of Fort Greene, Boerum Hill, Prospect Heights, and Park Slope, this full-service building offers unmatched access to Atlantic Terminal's 9 subway lines (2,3,4,5,B,D,Q,N,R), the LIRR, and nearby A/C/G lines.
Policies
Pets allowed
Cats and dogs allowed
Home features
Central air
Dishwasher
Hardwood floors
View
City, Park, Skyline
Building amenities
Services and facilities
Bike room
Doorman
Full-time
Elevator
Laundry in building
Live-in super
Storage space
Wellness and recreation
Children's playroom
Gym
Shared outdoor space
Deck
Roof deck
About the building
1 Hanson Place
1 Hanson Place, Brooklyn, NY 11217
179 units
41 stories
1927 built
Property history
Prices shown are base rent only. For total monthly price and additional fees, see .
| Date | Base rent | Event |
|---|---|---|
2/19/2025 | $4,200 | Rented by Compass |
2/8/2025 | $4,200 | Listed by Compass |
2/7/2025 | $4,200 | In contract |
1/29/2025 | $4,200 | Price increased by 2% |
12/16/2024 | $4,100 | Listed by Compass |
Past listing photos
Sign in to take a closer look at how this home compares to similar homes.
Explore Fort Greene
Transit
| Location | Distance |
|---|---|
BDNQR2345at Atlantic Av–Barclays Ctr | under 500 feet |
Gat Fulton St | 0.12 miles |
Cat Lafayette Av | 0.17 miles |
LIRRat Atlantic Terminal | 0.17 miles |
2345at Nevins St | 0.22 miles |
About Fort Greene
Rental prices shown are base rent before any fees. Visit listings for cost and fees breakdown.
SalesMedian asking price
1 bed
$907K
RentalsMedian asking base rent
1 bed
$4,300
With bustling flea markets, a world-renowned performance space, trendy boutiques, fabulous restaurants, and a rich literary and artistic tradition, Fort Greene attracts residents looking for a slower pace of living without sacrificing the vibrancy of urban life. Historic brownstones and row houses make up most of the available real estate, and it's common to find neighbors catching up on their stoops. Intense Brooklyn pride is in evidence on the main drag of Fulton Street, where a Notorious B.I.G. quote is painted on the side of a prominent building - "Spread love it's the Brooklyn way."
Learn more about Fort GreeneSimilar homes
Prices shown are base rent only and don't include any fees. Visit each listing to see a complete cost breakdown.
Similar Homes looks at ad spend and other factors like location, price, and number of beds and baths.





























































































































































































