- ft²
2 rooms
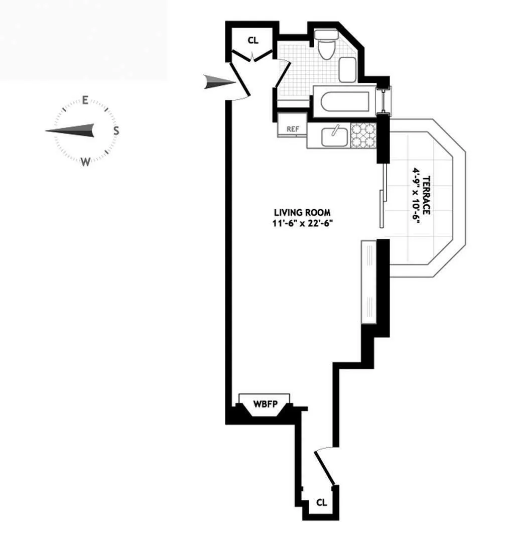
Studio
1 bath
Co-op
- Beekman
Resale
recorded sale
Sold on 10/13/2023
Verified by closing records
Last listed for $475,000
Seller's agent
This home has been saved by 182 users.
Listing by Brown Harris Stevens, Real Estate Principal Office, 445 Park Avenue, New York, NY 10022
Maintenance fees
$503/mo
Estimated payment
$2,814/mo
Legal disclaimerAll calculations are estimates provided by StreetEasy for informational purposes only. Actual amounts or financing terms may vary. Please contact your mortgage provider for specifics.Taxes
Included in maintenance fees
Tax abatement
No info
About
Seller’s agent
description
Freshly painted--New look!!
Very special charming SOUTH FACING SUNNY studio with LOW MAINTENANCE, TERRACE and WOOD BURNING FIREPLACE!
Come home to a SPACIOUS SOUTH FACING studio, sunny and bright all day long, with SOUTH FACING TERRACE and REAL WOOD BURNING FIREPLACE. GENEROUS CLOSET SPACE including a walk in closet! There are additional storage cages available for rent in the building.
Policies
Pets allowed
Cats and dogs allowed
Pied-a-terre allowed
Home features
Dishwasher
Fireplace
Wood
Hardwood floors
Private outdoor space
Terrace
Building amenities
Services and facilities
Bike room
Doorman
Full-time
Elevator
Laundry in building
Live-in super
Storage space
Locker/cage
Wellness and recreation
No info on wellness and recreation
Shared outdoor space
Roof deck
About the building
10 Mitchell Place
10 Mitchell Place, New York, NY 10017
99 units
13 stories
1932 built
For sale
3 available units for saleFor rent
0 available units for rentDocuments and permits
View documents and permitsProperty history
- Price Change: ↓ $20,000 (-4.0%) on 4/28/23
- Days on market: 341 daysThis is the number of days the listing has been on StreetEasy.
| Date | Price | Event |
|---|---|---|
10/13/2023 | $450,000 | Sold by Brown Harris Stevens |
6/29/2023 | $475,000 | In contract |
4/28/2023 | $475,000 | Price decreased by 4% |
4/28/2023 | $495,000 | Listed by Brown Harris Stevens |
4/8/2023 | $495,000 | Temporarily off market |
Past listing photos
Sign in to take a closer look at how this home compares to similar homes.
Explore Beekman
Transit
| Location | Distance |
|---|---|
EM6at Lexington Av–53rd St | 0.35 miles |
EM6at 51st St | 0.41 miles |
S4567at Grand Central–42nd St | 0.51 miles |
LIRRat Grand Central | 0.53 miles |
NRW456at Lexington Av/59th St | 0.61 miles |


















































































































































