3,200 ft²
$810 per ft²
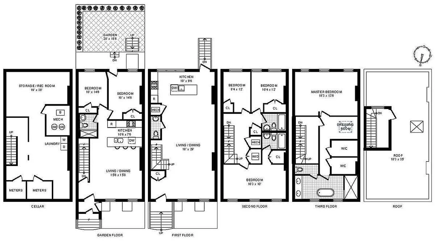
10 rooms
6 beds
4 baths
Four-family home
- Bedford-Stuyvesant
Resale
recorded sale
Sold on 4/29/2020
Verified by closing records
Last listed for $2,595,000
Seller's agent
This home has been saved by 117 users.
Listing by Brown Harris Stevens, Real Estate Principal Office, 100 Fifth Avenue, New York, NY 10011
Common charges
Not applicable
Estimated payment
$13,408/mo
Legal disclaimerAll calculations are estimates provided by StreetEasy for informational purposes only. Actual amounts or financing terms may vary. Please contact your mortgage provider for specifics.Taxes
$258/mo
Tax abatement
No info
About
Seller’s agent
Buyer’s agent
description
Encompassing the best of Brooklyn townhouse living, 10 Monroe is a 20'-wide; four story, two-unit townhouse on a serene tree-lined block. Featuring a total of six bedrooms, four baths and a generous chef's kitchen overlooking the sunny private deck and garden, this house is a haven and a smart investment.
Policies
Sorry, policy info isn’t available right now. Check back later.
Home features
Central air
Dishwasher
Private outdoor space
Garden, Roof deck
View
Garden
Building amenities
No info on building amenities
About the building
10 Monroe Street
10 Monroe Street, Brooklyn, NY 11238
4 units
3 stories
1930 built
For sale
0 available units for saleFor rent
0 available units for rentDocuments and permits
View documents and permitsProperty history
- Price Change: ↓ $100,000 (-3.7%) on 12/4/19
- Days on market: 137 daysThis is the number of days the listing has been on StreetEasy.
| Date | Price | Event |
|---|---|---|
4/29/2020 | $2,595,000 | Sold by Brown Harris Stevens |
1/21/2020 | $2,595,000 | In contract |
12/4/2019 | $2,595,000 | Price decreased by 4% |
10/3/2019 | $2,695,000 | Price decreased by 7% |
9/6/2019 | $2,885,000 | Listed by Brown Harris Stevens |
Past listing photos
Sign in to take a closer look at how this home compares to similar homes.
Explore Bedford-Stuyvesant
Transit
| Location | Distance |
|---|---|
ACSat Franklin Av | 0.27 miles |
ASat Franklin Av | 0.27 miles |
Gat Classon Av | 0.31 miles |
Cat Clinton & Washington Avs | 0.33 miles |
Gat Bedford–Nostrand Avs | 0.39 miles |
About Bedford-Stuyvesant
Rental prices shown are base rent before any fees. Visit listings for cost and fees breakdown.
SalesMedian asking price
6 beds
$2.54M
Bedford-Stuyvesant is a vast Brooklyn neighborhood filled with historic brownstones. Fans of Victorian architecture will appreciate the striking abodes in the leafy historic district.
Learn more about Bedford-Stuyvesant






























































































































































