2,040 ft²
$1,075 per ft²
8 rooms
4 beds
2.5 baths
House
- Boerum Hill
reported sale
Sold on 10/30/2013
Not yet verified by closing records
Seller's agents
This home has been saved by 16 users.
Listing by Corcoran, Limited Liability Broker, 1 Pierrepont Plz, Brooklyn, NY 11201 | Brokerage Listing ID: 2801263
Common charges
Not applicable
Estimated payment
$10,812/mo
Legal disclaimerAll calculations are estimates provided by StreetEasy for informational purposes only. Actual amounts or financing terms may vary. Please contact your mortgage provider for specifics.Taxes
No info
Tax abatement
No info
About
Seller’s agent
description
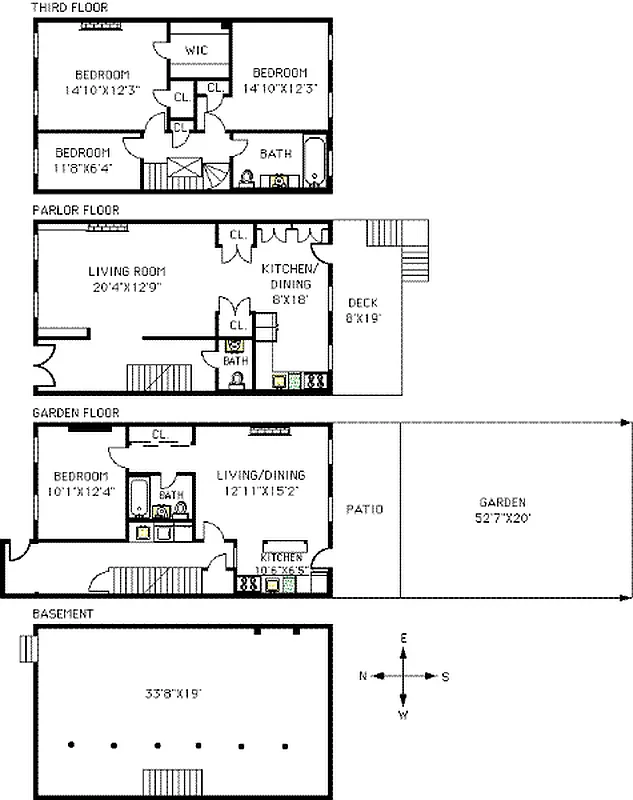
The search ends now! A 2 family Boerum Hill 20wide townhouse offers a fully renovated 3 bedroom duplex with central air and cooks kitchen to live in while earning great income from the 1 bedroom garden apartment. Need more space now (or later on)? This is the easiest conversion to a 1 family. The owners duplex enters up the stoop, and into a living room featuring a wood-burning fireplace, built-ins that showcase your library or mementos, and a powder room is nearby.
Policies
Sorry, policy info isn’t available right now. Check back later.
Home features
Fireplace
Building amenities
No info on building amenities
About the building
102 Douglass Street
102 Douglass Street, Brooklyn, NY 11231
1 unit
3 stories
1899 built
For sale
0 available units for saleFor rent
0 available units for rentDocuments and permits
View documents and permitsProperty history
- Price Change: No changes
- Days on market: 22 daysThis is the number of days the listing has been on StreetEasy.
| Date | Price | Event |
|---|---|---|
10/30/2013 | $2,350,000 | |
10/30/2013 | $2,195,000 | Sold by Corcoran |
10/30/2013 | $2,195,000 | No longer available |
10/1/2013 | $2,195,000 | In contract |
9/9/2013 | $2,195,000 | Listed by Corcoran |
Past listing photos
Sign in to take a closer look at how this home compares to similar homes.
Explore Boerum Hill
Transit
| Location | Distance |
|---|---|
FGat Bergen St | 0.18 miles |
FGat Carroll St | 0.2 miles |
ACGat Hoyt & Schermerhorn | 0.52 miles |
Rat Union St | 0.57 miles |
23at Hoyt St | 0.61 miles |
About Boerum Hill
Rental prices shown are base rent before any fees. Visit listings for cost and fees breakdown.
SalesMedian asking price
4 beds
$5.42M
Energetic and inviting, Boerum Hill continues its run as one of New York City's most desirable neighborhoods, all while remaining a secret quietly shared amongst its happy residents. Its appeal and vibrancy stem from its housing stock. Handsome Greek revival and Italianate townhouses line the wide, tree-lined streets. These beautiful brick and limestone buildings have long been a mecca for Brooklynites seeking an enclave close to Downtown Brooklyn and lower Manhattan — but far from crowds and highrises.
Main drags like Bergen Street, Atlantic Avenue, and Smith Street are peppered with charming boutiques like Collier West in addition to welcoming cafes, bars, and restaurants, including Rucola, French Louie, and Bacchus, to name a few. Fans of new construction will find new condo developments too. Saint Marks Place, The Hendrick, The Boerum, and The Bergen have expanded buyers' opportunities. Renters will also find plenty of options here in a broad range of prices, from the genuinely affordable to the luxurious.












































































































































































