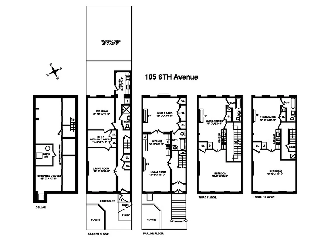
3,368 ft²
$889 per ft²
10 rooms
5 beds
4 baths
Four-family home
- Park Slope
reported sale
Sold on 1/10/2017
Not yet verified by closing records
Seller's agents
Tim Betancourt
Dwell Residential Inc
This home has been saved by 187 users.
Listing by Dwell Residential Inc, Corporate Broker | Brokerage Listing ID: 180917
Common charges
Not applicable
Estimated payment
$16,353/mo
Legal disclaimerAll calculations are estimates provided by StreetEasy for informational purposes only. Actual amounts or financing terms may vary. Please contact your mortgage provider for specifics.Taxes
$1,142/mo
Tax abatement
No info
About
Seller’s agent
description
North Slope Four Story stately brownstone in excellent condition. Built as a one family and currently used as a four family income property this Circa 1875 home has many remaining details including original walnut front doors with etched glass, many rooms with parquet or wide plank pine floorings, and decorative mantels. The faade has been fully restored, the parlor has very high ceilings with great east-west light from the floor to ceiling windows.
Policies
Sorry, policy info isn’t available right now. Check back later.
Home features
Private outdoor space
Garden
Building amenities
No info on building amenities
About the building
105 6th Avenue
105 6th Avenue, Brooklyn, NY 11217
4 units
3 stories
1920 built
For sale
0 available units for saleFor rent
0 available units for rentDocuments and permits
View documents and permitsProperty history
- Price Change: ↓ $184,000 (-5.8%) on 1/12/16
- Days on market: 306 daysThis is the number of days the listing has been on StreetEasy.
| Date | Price | Event |
|---|---|---|
11/16/2016 | $2,950,000 | |
1/10/2017 | $2,995,000 | Sold by Dwell Residential Inc |
8/8/2016 | $2,995,000 | In contract |
1/12/2016 | $2,995,000 | Price decreased by 6% |
10/8/2015 | $3,179,000 | Price increased by 7% |
Past listing photos
Sign in to take a closer look at how this home compares to similar homes.
Explore Park Slope
Transit
| Location | Distance |
|---|---|
23at Bergen St | 0.12 miles |
BQat 7th Av | 0.17 miles |
LIRRat Atlantic Terminal | 0.32 miles |
23at Grand Army Plaza | 0.34 miles |
BDNQR2345at Atlantic Av–Barclays Ctr | 0.38 miles |
About Park Slope
Rental prices shown are base rent before any fees. Visit listings for cost and fees breakdown.
SalesMedian asking price
5 beds
$3.7M
RentalsMedian asking base rent
5 beds
$16,000
Park Slope has a tranquil, easygoing vibe and can almost feel suburban. Strollers and children of all ages are a constant presence on sidewalks, as are shoppers patronizing local boutiques and dog walkers heading up to the park. Residents are Brooklynites through and through and tend to be socially conscious, artistically minded, and committed to their community. At night, a casual restaurant scene comes alive. For anyone looking for a night out, there are plenty of beer gardens and wine bars to patronize, especially in the South Slope, but don't go looking for dance clubs.
Learn more about Park Slope
















































































































































































