View this home virtually
$7,800
For Rent
Base rent only. For total monthly price and additional fees, see .
Rented 4/14/2022
1,400 ft²
$66 per ft²
5 rooms
3 beds
2 baths
Mixed-use building
- East Village
Under NYC law, you can't be charged a broker fee if you didn't hire a broker.
Listed By
This home has been saved by 21 users.
Listing by Jade Stone Real Estate Consulting, Corporate Broker, 1460 Broadway, New York, NY 10036
Unavailable
Rented on 4/14/2022
Days on market
4 days
Last price change
No changes
About
Available May 1st, 2022
- Shares permitted.
- No Pets (with exception of service animal)
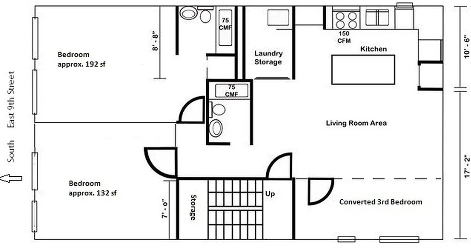
Large & renovated approx. 1400sf floor-through converted 3BR/2Baths loft in a boutique 4-story building located in vibrant Astor Place! The building boasts 1 apartment per floor with unit 3F just three flights up! The unit is currently set up as a 3BR but can be reverted to a 2BR if desired.
Policies
Sorry, policy info isn’t available right now. Check back later.
Home features
Central air
Dishwasher
Hardwood floors
View
City
Washer/dryer
Building amenities
Services and facilities
Laundry in building
Wellness and recreation
No info on wellness and recreation
Shared outdoor space
No info on shared outdoor space
About the building
105 East 9th Street
105 East 9th Street, New York, NY 10003
4 units
5 stories
1900 built
Property history
Prices shown are base rent only. For total monthly price and additional fees, see .
| Date | Base rent | Event |
|---|---|---|
4/14/2022 | $7,800 | Rented by Jade Stone Real Estate Consulting |
4/11/2022 | $7,800 | In contract |
4/7/2022 | $7,800 | Listed by Jade Stone Real Estate Consulting |
5/20/2020 | $6,500 | |
5/19/2020 | $6,500 |
Past listing photos
Sign in to take a closer look at how this home compares to similar homes.
Explore East Village
Transit
| Location | Distance |
|---|---|
6at Astor Place | under 500 feet |
RWat 8th St–NYU | 0.11 miles |
Lat 3rd Av | 0.24 miles |
LNQRW456at 14th St–Union Square | 0.25 miles |
Lat 1st Av | 0.39 miles |
About East Village
Rental prices shown are base rent before any fees. Visit listings for cost and fees breakdown.
SalesMedian asking price
3 beds
$3.55M
RentalsMedian asking base rent
3 beds
$7,495
Known and loved for being the birthplace of punk rock, the East Village is known for its vibrant restaurants and cocktail dens. During the day, however, the neighborhood slows down and has a tranquil feel. Meander down a leafy side street, and you'll happen upon plenty of prewar buildings and rusting fire escapes, which lend the East Village its old-fashioned charm.
Learn more about East VillageSimilar homes
Prices shown are base rent only and don't include any fees. Visit each listing to see a complete cost breakdown.
Similar Homes looks at ad spend and other factors like location, price, and number of beds and baths.



























































































