View this home virtually
$2,150
For Rent
Base rent only. For total monthly price and additional fees, see .
No longer available 1/21/2022
- ft²
4 rooms
1 bed
1 bath
Rental unit
- Crown Heights
Under NYC law, you can't be charged a broker fee if you didn't hire a broker.
Listed By
Shamco Management Corp
Shamco Management Corp
This home has been saved by 219 users.
Listing by Shamco Management Corp
Searching with a housing voucher, like Section 8?
Unavailable
No longer available on 1/21/2022
Days on market
35 days
Last price change
No changes
About
NO FEE 1 BEDROOM IN THE HEART OF CROWN HEIGHTS!!! LOCATED RIGHT ACROSS THE STREET FROM THE NEWLY RENOVATED ARMORY POOL AND GYM!!! WALKING DISTANCE TO THE FRANKLIN 2/3/4/5 SUBWAY AND PROSPECT PARK.
AVAILABLE TO VIEW AFTER January 3rd/2022
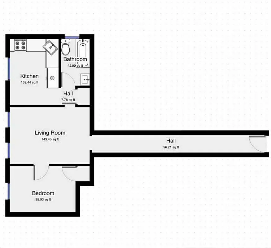
Beautiful spacious 1 bedroom apartment .This apartment features separate living space, tons of closets, renovated kitchen with beautiful updated cabinets,and stainless steel appliances.
Policies
Sorry, policy info isn’t available right now. Check back later.
Home features
Hardwood floors
Building amenities
Services and facilities
Live-in super
Wellness and recreation
No info on wellness and recreation
Shared outdoor space
No info on shared outdoor space
About the building
1092 President Street
1092 President Street, Brooklyn, NY 11225
- units
- stories
- built
For rent
0 available units for rentProperty history
Prices shown are base rent only. For total monthly price and additional fees, see .
| Date | Base rent | Event |
|---|---|---|
1/21/2022 | $2,150 | No longer available |
12/17/2021 | $2,150 | Listed by Shamco Management Corp |
12/8/2020 | $1,800 | |
12/4/2020 | $1,800 | |
11/23/2020 | $1,800 |
Past listing photos
Sign in to take a closer look at how this home compares to similar homes.
Explore Crown Heights
Transit
| Location | Distance |
|---|---|
25at President St | 0.22 miles |
S2345at Franklin Av | 0.22 miles |
3at Nostrand Av | 0.25 miles |
S2345at Botanic Gardens | 0.27 miles |
25at Sterling St | 0.39 miles |
About Crown Heights
Rental prices shown are base rent before any fees. Visit listings for cost and fees breakdown.
SalesMedian asking price
1 bed
$650K
RentalsMedian asking base rent
1 bed
$3,500
Crown Heights has a lot going on. From the chaotic, commercial avenues of Nostrand and Utica to the wide, tree-lined esplanades of Eastern Parkway, the streets are always filled with locals shopping, catching up on the corner, and keeping tabs on neighbors. Walk down any of these streets and you're likely to find music playing from idling cars and bright Caribbean flags hanging from windows of apartment buildings. Every Labor Day, Crown Heights hosts the West Indian Day Parade, one of the city's largest annual street festivals which draws thousands of people from around the city and the world. The mix of people in such close proximity makes Crown Heights a fascinating microcosm of New York City. Living here, you'll be surrounded by a community with deep roots and rich heritage.
Learn more about Crown HeightsSimilar homes
Prices shown are base rent only and don't include any fees. Visit each listing to see a complete cost breakdown.
Similar Homes looks at ad spend and other factors like location, price, and number of beds and baths.


























































