$8,995
For Rent
Base rent only. For total monthly price and additional fees, see .
No longer available 9/9/2025
$8,245 net effective base rent
1 month free
12-month lease
1,600 ft²
$67 per ft²
6 rooms
2 beds
2.5 baths
Three-family home
- Park Slope
Under NYC law, you can't be charged a broker fee if you didn't hire a broker.
Listed By
This home has been saved by 16 users.
Listing by Compass, Corporate Broker, 110 5th Avenue, New York, NY 10011
Unavailable
No longer available on 9/9/2025
Days on market
13 days
Last price change
↓ $505 (-5.3%) on 9/9/25
About
Tenant moving cost and fees:
Application Fees: $20 per applicant and guarantor
Security Deposit: $8,995
1st Month Rent: $8,995
2nd Month Rent: $0
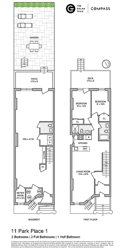
Brand New, Gut-Renovated Duplex with Private Garden in Prime Park Slope
Welcome to this stunning 2-bedroom + spacious bonus room/home office, 2.5-bath duplex condominium located on the garden and parlor floors of a beautifully restored townhouse in the heart of Park Slope.
Policies
Sorry, policy info isn’t available right now. Check back later.
Home features
Central air
Dishwasher
Hardwood floors
Private outdoor space
Garden
View
Garden
Washer/dryer
Building amenities
Services and facilities
Bike room
Wellness and recreation
No info on wellness and recreation
Shared outdoor space
No info on shared outdoor space
About the building
11 Park Place
11 Park Place, Brooklyn, NY 11217
3 units
3 stories
1899 built
For rent
0 available units for rentProperty history
Prices shown are base rent only. For total monthly price and additional fees, see .
| Date | Base rent | Event |
|---|---|---|
12/9/2025 | $8,995 | No longer available |
9/9/2025 | $8,995 | Temporarily off market |
9/9/2025 | $8,995 | Price decreased by 5% |
9/9/2025 | $9,500 | Listed by Compass |
7/7/2025 | $9,500 | Delisted by Compass |
Sign in to take a closer look at how this home compares to similar homes.
Explore Park Slope
Transit
| Location | Distance |
|---|---|
23at Bergen St | 0.14 miles |
BDNQR2345at Atlantic Av–Barclays Ctr | 0.29 miles |
LIRRat Atlantic Terminal | 0.29 miles |
BQat 7th Av | 0.31 miles |
Rat Union St | 0.33 miles |
About Park Slope
Rental prices shown are base rent before any fees. Visit listings for cost and fees breakdown.
SalesMedian asking price
2 beds
$1.5M
RentalsMedian asking base rent
2 beds
$4,750
Park Slope has a tranquil, easygoing vibe and can almost feel suburban. Strollers and children of all ages are a constant presence on sidewalks, as are shoppers patronizing local boutiques and dog walkers heading up to the park. Residents are Brooklynites through and through and tend to be socially conscious, artistically minded, and committed to their community. At night, a casual restaurant scene comes alive. For anyone looking for a night out, there are plenty of beer gardens and wine bars to patronize, especially in the South Slope, but don't go looking for dance clubs.
Learn more about Park SlopeSimilar homes
Prices shown are base rent only and don't include any fees. Visit each listing to see a complete cost breakdown.
Similar Homes looks at ad spend and other factors like location, price, and number of beds and baths.









































































































































































