1,239 ft²
$1,089 per ft²
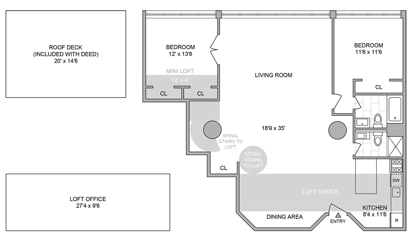
6 rooms
2 beds
2 baths
Co-op
- Clinton Hill
Resale
recorded sale
Sold on 1/30/2023
Verified by closing records
Last listed for $1,285,000
Seller's agents
This home has been saved by 78 users.
Listing by Compass, Corporate Broker, 110 5th Avenue, New York, NY 10011 | Brokerage Listing ID: 1145667050873706641
Maintenance fees
$1,415/mo
Estimated payment
$7,913/mo
Legal disclaimerAll calculations are estimates provided by StreetEasy for informational purposes only. Actual amounts or financing terms may vary. Please contact your mortgage provider for specifics.Taxes
Included in maintenance fees
Tax abatement
No info
About
Seller’s agent
Buyer’s agent
description
Brand new to the market, true loft living in Clinton Hill’s most sought-after conversion, The Ping Pong Factory! ✨.
Welcome to unit 1D! With over 1200 sq feet this is one of largest units in the building, with the most usable space.
Enter the home and fall in love, big! Love is: soaring 14 ft ceilings, 7 ft oversized windows, multi room/ multi level spaces, and custom fixtures.
Policies
Sorry, policy info isn’t available right now. Check back later.
Home features
Dishwasher
Hardwood floors
Private outdoor space
Roof deck
Building amenities
Services and facilities
Elevator
Laundry in building
Wellness and recreation
No info on wellness and recreation
Shared outdoor space
Deck
Roof deck
About the building
110 Clifton Place
110 Clifton Place, Brooklyn, NY 11238
34 units
3 stories
1922 built
For sale
0 available units for saleFor rent
0 available units for rentDocuments and permits
View documents and permitsProperty history
- Price Change: No changes
- Days on market: 21 daysThis is the number of days the listing has been on StreetEasy.
| Date | Price | Event |
|---|---|---|
1/30/2023 | $1,350,000 | Sold by Compass |
10/21/2022 | $1,285,000 | In contract |
9/30/2022 | $1,285,000 | Listed by Compass |
12/22/2011 | $670,000 |
Past listing photos
Sign in to take a closer look at how this home compares to similar homes.
Explore Clinton Hill
Transit
| Location | Distance |
|---|---|
Gat Classon Av | under 500 feet |
Gat Bedford–Nostrand Avs | 0.27 miles |
Gat Clinton–Washington Avs | 0.29 miles |
Cat Clinton & Washington Avs | 0.4 miles |
ACSat Franklin Av | 0.51 miles |



























































































