- ft²
4 rooms
1 bed
1 bath
Condop
- Lenox Hill
Resale
recorded sale
Sold on 1/14/2022
Verified by closing records
Last listed for $895,000
Seller's agent
This home has been saved by 62 users.
Listing by Brown Harris Stevens, Real Estate Principal Office, 445 Park Avenue, New York, NY 10022
Maintenance fees
$1,825/mo
Estimated payment
$6,365/mo
Legal disclaimerAll calculations are estimates provided by StreetEasy for informational purposes only. Actual amounts or financing terms may vary. Please contact your mortgage provider for specifics.Taxes
Included in maintenance fees
Tax abatement
No info
About
Seller’s agent
Buyer’s agent
description
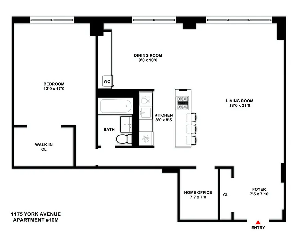
XXXMint Soho Syle Jr 4
The absolutely most fabulous loft style Junior 2 Bedroom available on the Upper East Side. The super spacious livingroom and 9.8 x10 dining alcove face a sunny beautifully planted garden, the apartment has TWO huge walk-in closets for storage and one designed as a home office, as well as a generous double coat closet. The master suite is 12X18, and also looks out into the glorious garden.
Policies
Pets allowed
Home features
View
Park
Building amenities
Services and facilities
Bike room
Doorman
Full-time
Elevator
Live-in super
Wellness and recreation
Children's playroom
Gym
Shared outdoor space
Roof deck
About the building
1175 York Avenue
1175 York Avenue, New York, NY 10065
232 units
18 stories
1958 built
For sale
12 available units for saleFor rent
0 available units for rentDocuments and permits
View documents and permitsProperty history
- Price Change: ↓ $55,000 (-5.8%) on 9/7/21
- Days on market: 117 daysThis is the number of days the listing has been on StreetEasy.
| Date | Price | Event |
|---|---|---|
1/14/2022 | $895,000 | Sold by Brown Harris Stevens |
10/25/2021 | $895,000 | In contract |
9/7/2021 | $895,000 | Price decreased by 6% |
6/30/2021 | $950,000 | Listed by Brown Harris Stevens |
2/23/2017 | $904,540 |
Past listing photos
Sign in to take a closer look at how this home compares to similar homes.
Explore Lenox Hill
Transit
| Location | Distance |
|---|---|
Qat 72nd St | 0.38 miles |
NRW456at Lexington Av/59th St | 0.42 miles |
FQat Lexington Av/63rd St | 0.49 miles |
6at 68th St–Hunter College | 0.53 miles |
EM6at Lexington Av–53rd St | 0.64 miles |




















































































































