View this home virtually
$17,950
For Rent
Base rent only. For total monthly price and additional fees, see .
Rented 10/30/2023
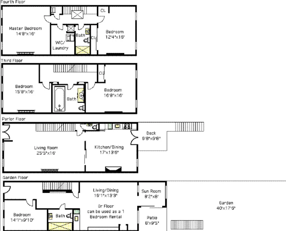
3,400 ft²
$63 per ft²
11 rooms
5 beds
3.5 baths
Two-family home
- Fort Greene
Under NYC law, you can't be charged a broker fee if you didn't hire a broker.
Listed By
This home has been saved by 32 users.
Listing by SERHANT., Limited Liability Broker, 372 West Broadway, New York, NY 10012
Unavailable
Rented on 10/30/2023
Days on market
71 days
Last price change
↓ $1,800 (-9.1%) on 10/14/23
About
Luxurious Park Living in Historic Fort Greene.
11A South Elliott Place offered for rent.
Experience autumnal charm and a true townhome lifestyle on the park in this stunning triplex in the Fort Greene Historic District.
Just a few doors from Fort Greene Park, 11A South Elliott Place is a masterful example of preservation and innovation that seamlessly weaves historic details with modern luxuries.
Policies
Sorry, policy info isn’t available right now. Check back later.
Home features
Central air
Dishwasher
Fireplace
Hardwood floors
View
Garden, Park
Washer/dryer
Building amenities
Services and facilities
Laundry in building
Wellness and recreation
No info on wellness and recreation
Shared outdoor space
No info on shared outdoor space
About the building
11A South Elliott Place
11a South Elliott Place, Brooklyn, NY 11217
2 units
3 stories
1900 built
Property history
Prices shown are base rent only. For total monthly price and additional fees, see .
| Date | Base rent | Event |
|---|---|---|
10/30/2023 | $17,950 | Rented by SERHANT. |
10/23/2023 | $17,950 | In contract |
10/14/2023 | $17,950 | Price decreased by 9% |
9/6/2023 | $19,750 | Price decreased by 12% |
8/13/2023 | $22,500 | Listed by SERHANT. |
Past listing photos
Sign in to take a closer look at how this home compares to similar homes.
Explore Fort Greene
Transit
| Location | Distance |
|---|---|
Gat Fulton St | 0.15 miles |
Cat Lafayette Av | 0.2 miles |
2345at Nevins St | 0.25 miles |
BQRat DeKalb Av | 0.28 miles |
BDNQR2345at Atlantic Av–Barclays Ctr | 0.3 miles |
About Fort Greene
Rental prices shown are base rent before any fees. Visit listings for cost and fees breakdown.
SalesMedian asking price
5 beds
$4M
RentalsMedian asking base rent
5 beds
$25,000
With bustling flea markets, a world-renowned performance space, trendy boutiques, fabulous restaurants, and a rich literary and artistic tradition, Fort Greene attracts residents looking for a slower pace of living without sacrificing the vibrancy of urban life. Historic brownstones and row houses make up most of the available real estate, and it's common to find neighbors catching up on their stoops. Intense Brooklyn pride is in evidence on the main drag of Fulton Street, where a Notorious B.I.G. quote is painted on the side of a prominent building - "Spread love it's the Brooklyn way."
Learn more about Fort GreeneSimilar homes
Prices shown are base rent only and don't include any fees. Visit each listing to see a complete cost breakdown.
Similar Homes looks at ad spend and other factors like location, price, and number of beds and baths.
















































































































































































































