- ft²
4 rooms
2 beds
2 baths
Co-op
- Beekman
recorded sale
Sold on 6/1/2012
Verified by closing records
Last listed for $1,645,000
Seller's agent
This home has been saved by 4 users.
Listing by Brown Harris Stevens, Real Estate Principal Office, 445 Park Avenue, New York, NY 10022 | MLS #: 1278980
Maintenance fees
$3,445/mo
Estimated payment
$12,194/mo
Taxes
Included in maintenance fees
Tax abatement
No info
About
Seller’s agent
Buyer’s agent
description
CONTRACT SIGNED
Like Living on a Yacht
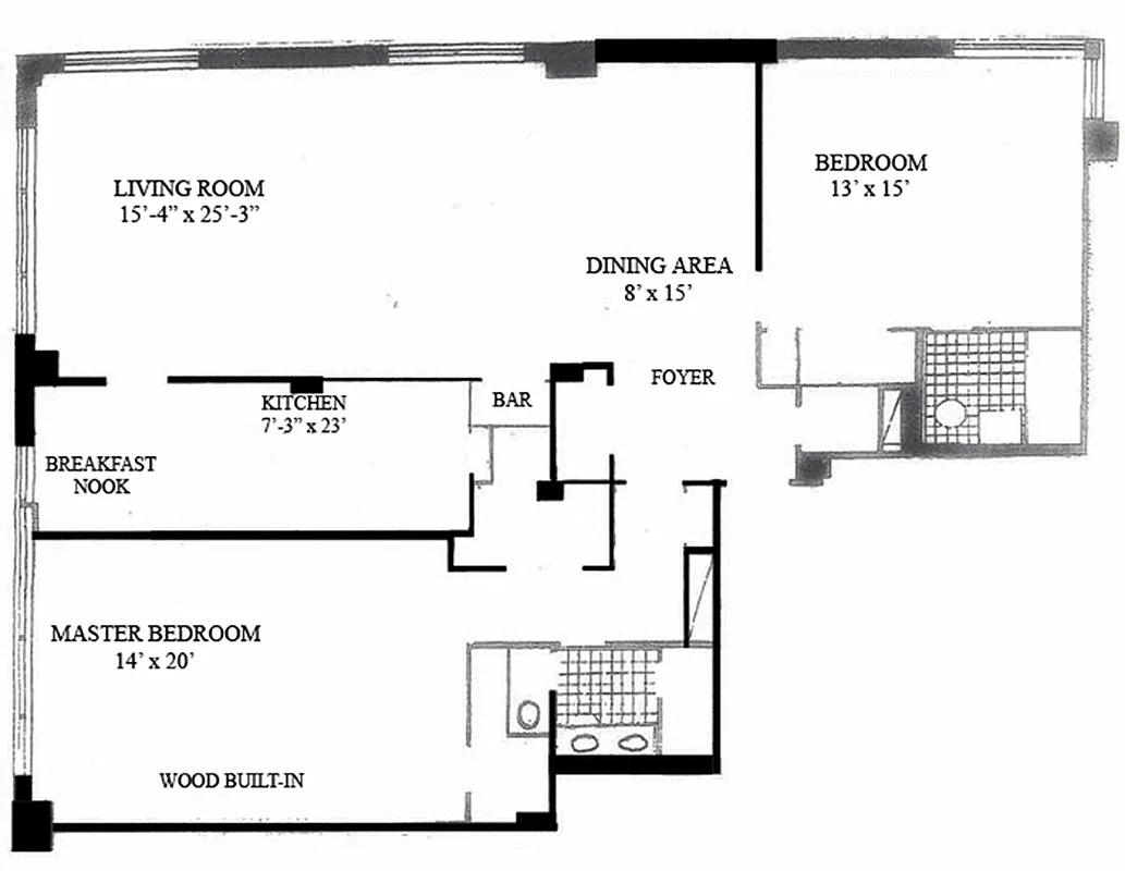
Enjoy spectacular river, bridge and skyline views from your living room, eat-in kitchen and master bedroom. Perched at just the right spot on Beekman Place, this one-of-a-kind, double corner, spacious and sunny 4.5 room, 2 bedroom, 2 bath home offers all the waterfront pleasures of passing tug boats, ships, sail and power yachts and the ebb and flood tidal flows of the ever changing East River.
Policies
Pets allowed
Cats and dogs allowed
Pied-a-terre allowed
Home features
No info on home features
Building amenities
Services and facilities
Doorman
Full-time
Elevator
Laundry in building
Live-in super
Parking
Garage
Storage space
Wellness and recreation
No info on wellness and recreation
Shared outdoor space
No info on shared outdoor space
About the building
12 Beekman Place
12 Beekman Place, New York, NY 10022
69 units
13 stories
1957 built
For sale
4 available units for saleFor rent
0 available units for rentDocuments and permits
View documents and permitsProperty history
- Price Change: No changes
- Days on market: 189 days
| Date | Price | Event |
|---|---|---|
1/21/2022 | $1,600,000 | |
6/1/2012 | $1,645,000 | Sold by Brown Harris Stevens |
5/3/2012 | $1,645,000 | No longer available |
3/7/2012 | $1,645,000 | In contract |
8/2/2011 | $1,645,000 | Listed by Brown Harris Stevens |
Past listing photos
Sign in to take a closer look at how this home compares to similar homes.
Explore Beekman
Transit
| Location | Distance |
|---|---|
EM6at Lexington Av–53rd St | 0.36 miles |
EM6at 51st St | 0.42 miles |
S4567at Grand Central–42nd St | 0.54 miles |
LIRRat Grand Central | 0.55 miles |
NRW456at Lexington Av/59th St | 0.6 miles |


























































































































