- ft²
3 rooms
1 bed
1 bath
Condo
- Crown Heights
Sponsor unit
Sponsor unitA unit being sold for the first time. Itâs typically owned by the building. For condos, this is often the developer. For co-ops, this is often the buildingâs original owner before it went co-op.
reported sale
Sold on 8/30/2023
Not yet verified by closing records
Seller's agents
This home has been saved by 97 users.
Listing by Keller Williams NYC, Limited Liability Broker, 360 Madison Avenue, New York, NY 10017
Common charges
$519/mo
Estimated payment
$3,477/mo
Legal disclaimerAll calculations are estimates provided by StreetEasy for informational purposes only. Actual amounts or financing terms may vary. Please contact your mortgage provider for specifics.Taxes
$286/mo
Tax abatement
No info
About
Sellerâs agent
description
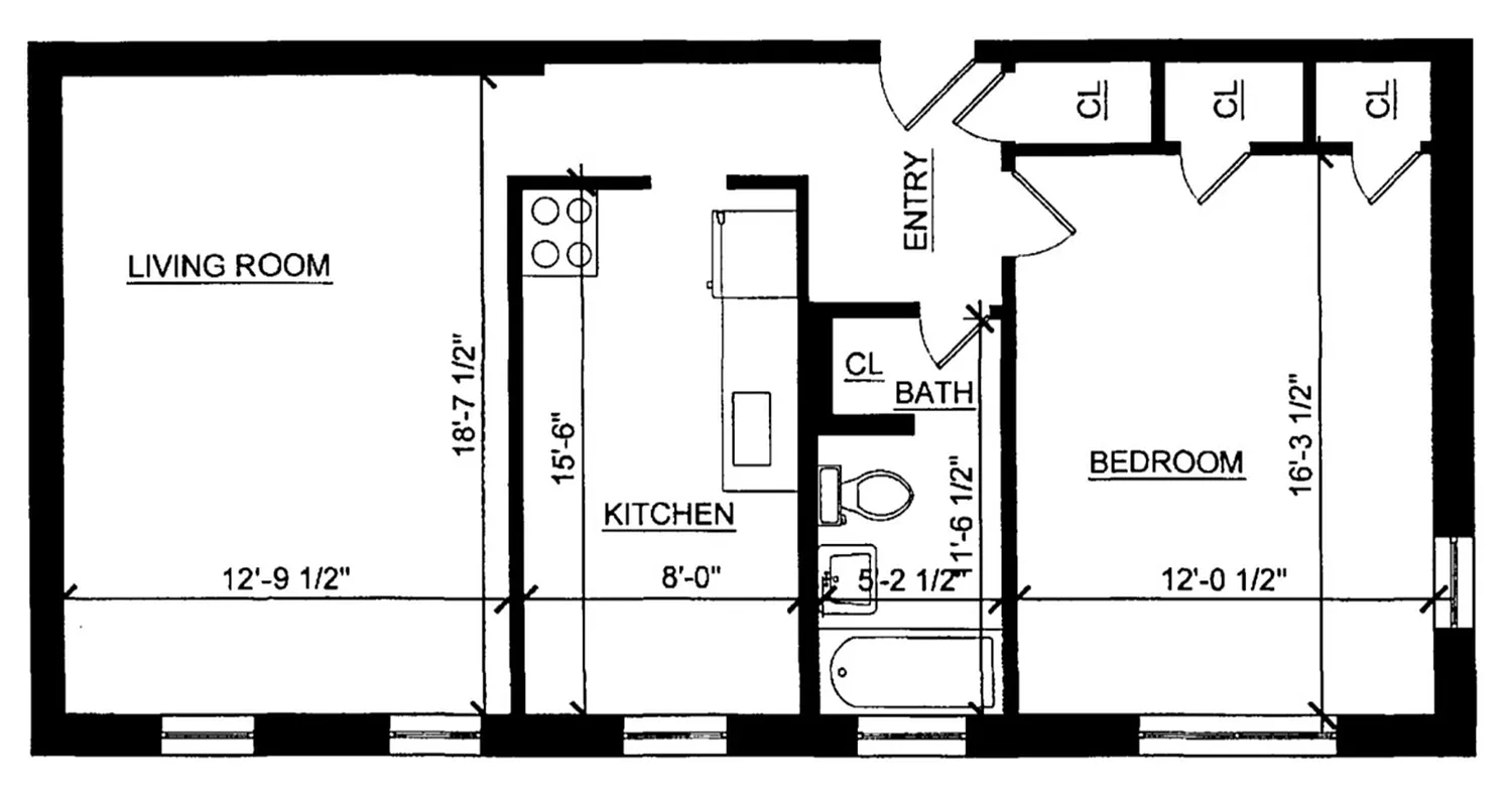
Welcome to the residences at 12 Crown Street. This refreshed 1 bedroom, 1 bathroom has a large and functional floor plan with an updated kitchen and bathroom, hardwood flooring, base molding, and high ceilings.
The kitchen has custom cabinetry, Herringbone glass tiled back-splash, Quartz countertop, and stainless steel appliances, including a gas oven, microwave, and dishwasher.
Policies
Sorry, policy info isnât available right now. Check back later.
Home features
Dishwasher
Hardwood floors
View
City
Building amenities
Services and facilities
Elevator
Laundry in building
Live-in super
Package room
Wellness and recreation
No info on wellness and recreation
Shared outdoor space
No info on shared outdoor space
About the building
12 Crown Street
12 Crown Street, Brooklyn, NY 11225
84 units
6 stories
1930 built
For sale
0 available units for saleFor rent
1 available units for rentDocuments and permits
View documents and permitsProperty history
- Price Change: No changes
- Days on market: 36 daysThis is the number of days the listing has been on StreetEasy.
| Date | Price | Event |
|---|---|---|
8/30/2023 | $525,000 | Sold by Keller Williams NYC |
7/25/2023 | $525,000 | Listed by Keller Williams NYC |
Past listing photos
Sign in to take a closer look at how this home compares to similar homes.
Explore Crown Heights
Transit
| Location | Distance |
|---|---|
S2345at Botanic Gardens | 0.25 miles |
S2345at Franklin Av | 0.26 miles |
BQSat Prospect Park | 0.32 miles |
23at Eastern ParkwayâBrooklyn Museum | 0.36 miles |
Sat Park Place | 0.53 miles |
About Crown Heights
Rental prices shown are base rent before any fees. Visit listings for cost and fees breakdown.
SalesMedian asking price
1 bed
$650K
RentalsMedian asking base rent
1 bed
$3,500
Crown Heights has a lot going on. From the chaotic, commercial avenues of Nostrand and Utica to the wide, tree-lined esplanades of Eastern Parkway, the streets are always filled with locals shopping, catching up on the corner, and keeping tabs on neighbors. Walk down any of these streets and you're likely to find music playing from idling cars and bright Caribbean flags hanging from windows of apartment buildings. Every Labor Day, Crown Heights hosts the West Indian Day Parade, one of the city's largest annual street festivals which draws thousands of people from around the city and the world. The mix of people in such close proximity makes Crown Heights a fascinating microcosm of New York City. Living here, you'll be surrounded by a community with deep roots and rich heritage.
Learn more about Crown Heights




































































































