$5,195
For Rent
Base rent only. For total monthly price and additional fees, see .
Rented 3/11/2025
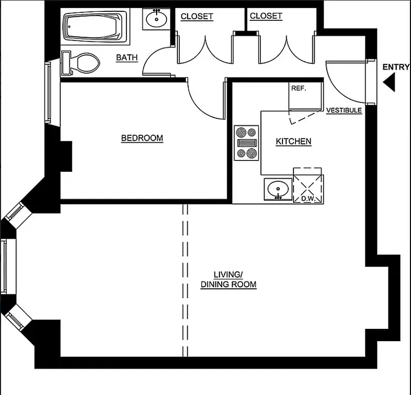
- ft²
1 room
1 bed
1 bath
Rental unit
- NoMad
Under NYC law, you can't be charged a broker fee if you didn't hire a broker.
Listed By
This home has been saved by 23 users.
Listing by Spire Group, Corporate Broker, 401 New Karner Road, Albany, NY 12205
Unavailable
Rented on 3/11/2025
Days on market
6 days
Last price change
No changes
About
Modern Elegance Meets Historic Charm – 1-Bedroom (FLEX 2) at 121 Madison
Experience the perfect blend of contemporary sophistication and classic charm in this beautifully designed 1-bedroom (FLEX 2) apartment at 121 Madison. Thoughtfully curated with high-end finishes and a flexible layout, this home is ideal for stylish city living.
Policies
Pets allowed
Home features
Central air
Dishwasher
Hardwood floors
View
City, Garden, Skyline
Building amenities
Services and facilities
Bike room
Concierge
Doorman
Elevator
Laundry in building
Live-in super
Package room
Storage space
Locker/cage
Wheelchair access
Wellness and recreation
No info on wellness and recreation
Shared outdoor space
Roof deck
About the building
121 Madison Avenue
121 Madison Avenue, New York, NY 10016
102 units
12 stories
1938 built
Property history
Prices shown are base rent only. For total monthly price and additional fees, see .
| Date | Base rent | Event |
|---|---|---|
3/11/2025 | $5,195 | Rented by Spire Group |
3/5/2025 | $5,195 | Listed by Spire Group |
Past listing photos
Sign in to take a closer look at how this home compares to similar homes.
Explore NoMad
Transit
| Location | Distance |
|---|---|
6at 33rd St | 0.1 miles |
6at 28th St | 0.13 miles |
RWat 28th St | 0.21 miles |
BDFMNQRWat 34th St–Herald Sq | 0.28 miles |
PATHat 33rd Street Station | 0.33 miles |
Similar homes
Prices shown are base rent only and don't include any fees. Visit each listing to see a complete cost breakdown.
Similar Homes looks at ad spend and other factors like location, price, and number of beds and baths.














































































