- ft²
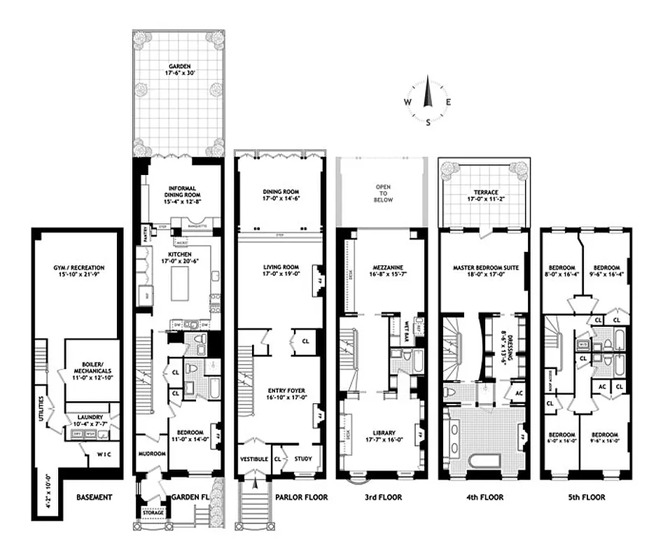
8 rooms
6 beds
5+ baths
Four-family home
- Upper West Side
recorded sale
Sold on 12/4/2014
Verified by closing records
Last listed for $10,975,000
Seller's agent
This home has been saved by 32 users.
Listing by Brown Harris Stevens, Real Estate Principal Office, 100 Fifth Avenue, New York, NY 10011 | MLS #: 9913742
Common charges
Not applicable
Estimated payment
$55,738/mo
Legal disclaimerAll calculations are estimates provided by StreetEasy for informational purposes only. Actual amounts or financing terms may vary. Please contact your mortgage provider for specifics.Taxes
No info
Tax abatement
No info
About
Seller’s agent
description
CONTRACT SIGNED
Elegant & Dramatic Townhouse
Rarely does an exceptional townhouse of such incomparable quality and condition come on the market. This home combines dramatic renovations with a thorough restoration of many of the original details yielding a house of immense character. With six bedrooms, five and a half bathrooms, a library, media room, breakfast room, gym and plenty of outdoor space,...
Policies
Sorry, policy info isn’t available right now. Check back later.
Home features
Dishwasher
Private outdoor space
Garden
Building amenities
Services and facilities
Storage space
Wellness and recreation
Gym
Shared outdoor space
No info on shared outdoor space
About the building
121 West 81st Street
121 West 81st Street, New York, NY 10024
4 units
4 stories
1900 built
For sale
0 available units for saleFor rent
0 available units for rentDocuments and permits
View documents and permitsProperty history
- Price Change: ↓ $1,025,000 (-8.5%) on 7/1/14
- Days on market: 166 daysThis is the number of days the listing has been on StreetEasy.
| Date | Price | Event |
|---|---|---|
12/4/2014 | $10,000,000 | Sold by Brown Harris Stevens |
12/4/2014 | $10,975,000 | No longer available |
10/23/2014 | $10,975,000 | In contract |
7/1/2014 | $10,975,000 | Price decreased by 9% |
5/10/2014 | $12,000,000 | Listed by Brown Harris Stevens |
Past listing photos
Sign in to take a closer look at how this home compares to similar homes.
Explore Upper West Side
Transit
| Location | Distance |
|---|---|
BCat 81st St–Museum of Natural History | 0.2 miles |
1at 79th St | 0.24 miles |
BCat 86th St | 0.3 miles |
1at 86th St | 0.3 miles |
123at 72nd St | 0.47 miles |
About Upper West Side
Rental prices shown are base rent before any fees. Visit listings for cost and fees breakdown.
SalesMedian asking price
6 beds
$12.69M
RentalsMedian asking base rent
6 beds
$55,000
Sandwiched between two beautiful parks, the Upper West Side is one of the greenest spots in Manhattan. For that reason, it is a perennial favorite. The Upper West Side is relaxed, but never dull. There are plenty of low-key bars and restaurants to frequent along Amsterdam Avenue, and Broadway is an always-bustling commercial center. The wide, tree-lined streets still boast many mom-and-pop stores. Less posh than the Upper East Side, it is more easily accessible by public transportation, and real estate prices are just as, if not more, expensive.
Learn more about Upper West Side


































































































































































































































































