$4,080,000
For Sale
No longer available 3/30/2022
2,406 ft²
$1,695 per ft²
5 rooms
3 beds
4 baths
Condo
- Chelsea
Resale
Seller's agent
This home has been saved by 15 users.
Listing by Domus Realty, Corporate Broker, 126 East 64th Street, New York, NY 10065
Common charges
$1,719/mo
Estimated payment
$28,779/mo
Legal disclaimerAll calculations are estimates provided by StreetEasy for informational purposes only. Actual amounts or financing terms may vary. Please contact your mortgage provider for specifics.Taxes
$3,243/mo
Tax abatement
No info
About
Seller’s agent
description
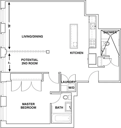
Combine and own an exquisite and spacious potential LOFT of 3 Bedroom and 4 bathroom apartment in the heart of Chelsea!
Currently two separate units for sale (2A and 2D), the potential combination of both units could offer a cheerful and large 2406 square ft. loft featuring 3 bedroom/4 Bathroom. The living room of unit 2A can offer a potential extra space for home office or a small 2nd bedroom.
Policies
Sorry, policy info isn’t available right now. Check back later.
Home features
Central air
Dishwasher
Hardwood floors
Washer/dryer
Building amenities
Services and facilities
Doorman
Part-time
Elevator
Wellness and recreation
No info on wellness and recreation
Shared outdoor space
Roof deck
About the building
124W24
124 West 24th Street, New York, NY 10011
20 units
6 stories
1920 built
For sale
2 available units for saleFor rent
0 available units for rentDocuments and permits
View documents and permitsProperty history
- Price Change: ↓ $170,000 (-4.0%) on 3/11/22
- Days on market: 180 daysThis is the number of days the listing has been on StreetEasy.
| Date | Price | Event |
|---|---|---|
6/29/2022 | $4,080,000 | No longer available |
3/30/2022 | $4,080,000 | Temporarily off market |
3/11/2022 | $4,080,000 | Price decreased by 4% |
10/1/2021 | $4,250,000 | Listed by Domus Realty |
Sign in to take a closer look at how this home compares to similar homes.
Explore Chelsea
Transit
| Location | Distance |
|---|---|
FMat 23rd St | under 500 feet |
PATHat 23rd Street Station | under 500 feet |
1at 23rd St | under 500 feet |
1at 28th St | 0.22 miles |
CEat 23rd St | 0.25 miles |
About Chelsea
Rental prices shown are base rent before any fees. Visit listings for cost and fees breakdown.
SalesMedian asking price
3 beds
$3.7M
RentalsMedian asking base rent
3 beds
$8,495
If you're looking for a staid, quiet place to live, Chelsea is not for you. Its thriving arts scene has always been a big draw for creative types. Not surprisingly, residents pay a high price to live in such a hip and happening part of Manhattan. The neighborhood has some of the most exclusive restaurants and bars in the city, and real estate prices are steep — especially for new condos along the High Line.
Slip down many of the side streets, however, and you're likely to find some beautiful and historic townhouses nestled gracefully within the neighborhood's hustle and bustle.















































































































































