- ft²
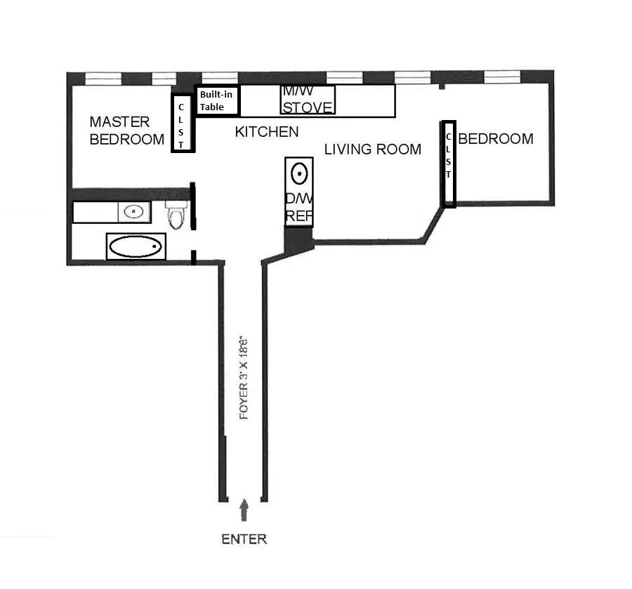
4 rooms
2 beds
1 bath
Co-op
- East Village
Resale
reported sale
Sold on 8/17/2022
Not yet verified by closing records
Seller's agents
This home has been saved by 134 users.
Listing by Douglas Elliman, Limited Liability Broker, 111 5th Avenue, New York, NY 10003 | Brokerage Listing ID: 21579219
Maintenance fees
$1,039/mo
Estimated payment
$4,881/mo
Legal disclaimerAll calculations are estimates provided by StreetEasy for informational purposes only. Actual amounts or financing terms may vary. Please contact your mortgage provider for specifics.Taxes
Included in maintenance fees
Tax abatement
No info
About
Sellerâs agent
description
Nestled in the heart of the East Village, this renovated gem of a first-floor apartment is loaded with character and charm, as well as every modern convenience! The windowed kitchen features Caesarstone concrete countertops, water filter and faucets, a large pantry, custom cabinetry, breakfast counter, and stainless steel appliances, including a Bosch dishwasher.
Policies
Co-purchase allowed
Pets allowed
Cats and dogs allowed
Sublets allowed
Home features
No info on home features
Building amenities
Services and facilities
Bike room
Wellness and recreation
No info on wellness and recreation
Shared outdoor space
No info on shared outdoor space
About the building
125 East 4th Street
125 East 4th Street, New York, NY 10003
28 units
6 stories
1905 built
For sale
1 available units for saleFor rent
0 available units for rentDocuments and permits
View documents and permitsProperty history
- Price Change: â $25,000 (-3.2%) on 4/19/22
- Days on market: 95 daysThis is the number of days the listing has been on StreetEasy.
| Date | Price | Event |
|---|---|---|
8/17/2022 | $750,000 | Sold by Douglas Elliman |
5/9/2022 | $750,000 | In contract |
4/19/2022 | $750,000 | Price decreased by 3% |
3/28/2022 | $775,000 | Price decreased by 3% |
2/3/2022 | $800,000 | Listed by Douglas Elliman |
Past listing photos
Sign in to take a closer look at how this home compares to similar homes.
Explore East Village
Transit
| Location | Distance |
|---|---|
| 0.18 miles |
| 0.35 miles |
| 0.35 miles |
| 0.4 miles |
| 0.42 miles |
About East Village
Rental prices shown are base rent before any fees. Visit listings for cost and fees breakdown.
SalesMedian asking price
2 beds
$1.6M
RentalsMedian asking base rent
2 beds
$5,272
Known and loved for being the birthplace of punk rock, the East Village is known for its vibrant restaurants and cocktail dens. During the day, however, the neighborhood slows down and has a tranquil feel. Meander down a leafy side street, and you'll happen upon plenty of prewar buildings and rusting fire escapes, which lend the East Village its old-fashioned charm.
Learn more about East Village




















































































