3,448 ft²
$533 per ft²
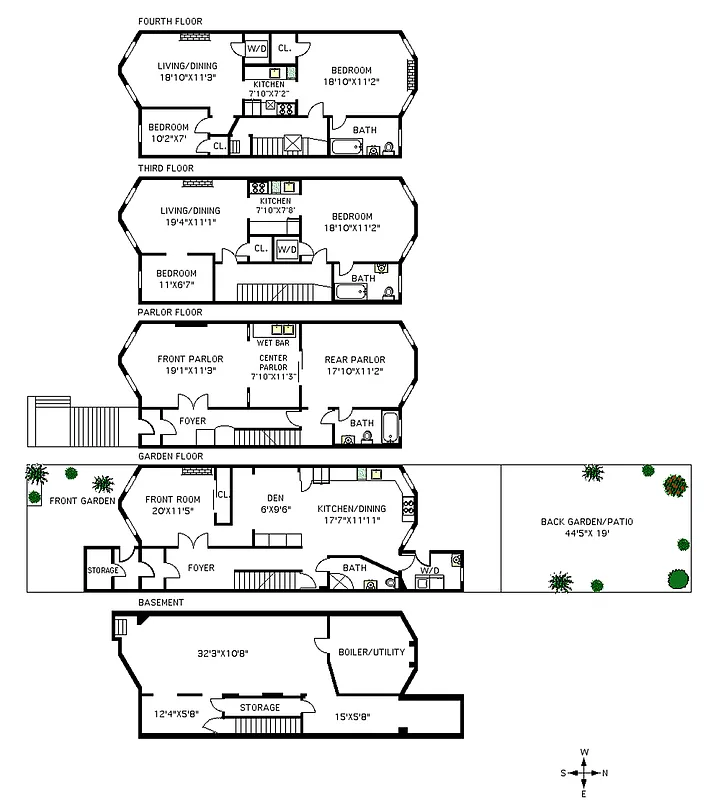
9 rooms
6 beds
4 baths
Three-family home
- Crown Heights
recorded sale
Sold on 4/29/2019
Verified by closing records
Last listed for $1,895,000
Seller's agent
This home has been saved by 95 users.
Listing by Corcoran, Limited Liability Broker, 1413 Fulton Street, Brooklyn, NY 11216 | Brokerage Listing ID: 5612944
Common charges
Not applicable
Estimated payment
$9,820/mo
Legal disclaimerAll calculations are estimates provided by StreetEasy for informational purposes only. Actual amounts or financing terms may vary. Please contact your mortgage provider for specifics.Taxes
$393/mo
Tax abatement
No info
About
Seller’s agent
description
1265 Bergen is the home you've been waiting for. Over the decade, the current owners have fastidiously maintained the 4 story, 3 family home and preserved its special details, creating a home that is perfectly move-in-ready. Complete with substantial rental income from two-2 bedroom top floor rental units (each with its own washer and dryer), you can comfortably live in the owners ground floor duplex...
Policies
Sorry, policy info isn’t available right now. Check back later.
Home features
Private outdoor space
Garden
Building amenities
Services and facilities
Laundry in building
Wellness and recreation
No info on wellness and recreation
Shared outdoor space
No info on shared outdoor space
About the building
1265 Bergen Street
1265 Bergen Street, Brooklyn, NY 11213
3 units
3 stories
1899 built
For sale
0 available units for saleFor rent
0 available units for rentDocuments and permits
View documents and permitsProperty history
- Price Change: No changes
- Days on market: 115 daysThis is the number of days the listing has been on StreetEasy.
| Date | Price | Event |
|---|---|---|
4/29/2019 | $1,840,000 | Sold by Corcoran |
4/30/2019 | $1,895,000 | No longer available |
3/21/2019 | $1,895,000 | In contract |
11/26/2018 | $1,895,000 | Listed by Corcoran |
Past listing photos
Sign in to take a closer look at how this home compares to similar homes.
Explore Crown Heights
Transit
| Location | Distance |
|---|---|
ACat Kingston–Throop | 0.28 miles |
LIRRat Nostrand Avenue | 0.31 miles |
ACat Nostrand Av | 0.44 miles |
3at Kingston Av | 0.46 miles |
3at Nostrand Av | 0.57 miles |
About Crown Heights
Rental prices shown are base rent before any fees. Visit listings for cost and fees breakdown.
SalesMedian asking price
6 beds
$2.2M
Crown Heights has a lot going on. From the chaotic, commercial avenues of Nostrand and Utica to the wide, tree-lined esplanades of Eastern Parkway, the streets are always filled with locals shopping, catching up on the corner, and keeping tabs on neighbors. Walk down any of these streets and you're likely to find music playing from idling cars and bright Caribbean flags hanging from windows of apartment buildings. Every Labor Day, Crown Heights hosts the West Indian Day Parade, one of the city's largest annual street festivals which draws thousands of people from around the city and the world. The mix of people in such close proximity makes Crown Heights a fascinating microcosm of New York City. Living here, you'll be surrounded by a community with deep roots and rich heritage.
Learn more about Crown Heights

























































































































































