- ft²
5 rooms
3 beds
2 baths
recorded sale
Sold on 8/10/2009
Verified by closing records
Last listed for $930,000
Seller's agent
This home has been saved by 8 users.
Listing by Brown Harris Stevens, Real Estate Principal Office, 129 Montague Street, Brooklyn, NY 11201 | MLS #: 173642
Common charges
Not applicable
Estimated payment
$4,875/mo
Legal disclaimerAll calculations are estimates provided by StreetEasy for informational purposes only. Actual amounts or financing terms may vary. Please contact your mortgage provider for specifics.Taxes
$258/mo
Tax abatement
No info
About
Seller’s agent
description
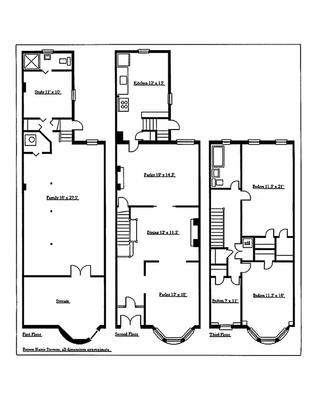
Built in 1911, this lovely, 20' wide limestone townhouse is located on one of Historic Lefferts Manor's prettiest tree-lined blocks. Designed by architect Benjamin Driesler, this handsome home's finest features are its spacious rooms and many ornate original details. At the parlor level, a gracious foyer opens to a detailed triple parlor with high ceilings.
Policies
Sorry, policy info isn’t available right now. Check back later.
Home features
Private outdoor space
Building amenities
No info on building amenities
About the building
128 Rutland Road
128 Rutland Road, Brooklyn, NY 11225
1 unit
2 stories
1910 built
For sale
0 available units for saleFor rent
0 available units for rentDocuments and permits
View documents and permitsProperty history
- Price Change: ↓ $69,000 (-6.9%) on 8/16/09
- Days on market: 109 daysThis is the number of days the listing has been on StreetEasy.
| Date | Price | Event |
|---|---|---|
8/16/2009 | $930,000 | Price decreased by 7% |
8/10/2009 | $930,000 | Sold by Brown Harris Stevens |
8/12/2009 | $999,000 | No longer available |
5/27/2009 | $999,000 | In contract |
4/23/2009 | $999,000 | Price decreased by 13% |
Sign in to take a closer look at how this home compares to similar homes.
Explore Prospect Lefferts Gardens
Transit
| Location | Distance |
|---|---|
BQSat Prospect Park | 0.33 miles |
25at Winthrop St | 0.35 miles |
BQat Parkside Av | 0.37 miles |
25at Sterling St | 0.41 miles |
BQat Church Av | 0.61 miles |



























































































