$8,995
For Rent
Base rent only. For total monthly price and additional fees, see .
Rented 10/25/2025
- ft²
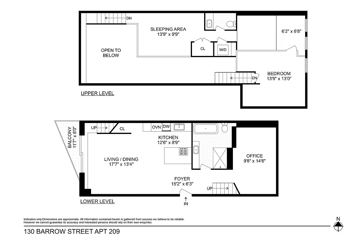
4 rooms
2 beds
1.5 baths
Condo
- West Village
Under NYC law, you can't be charged a broker fee if you didn't hire a broker.
Listed By
This home has been saved by 99 users.
Listing by Sotheby's International Realty, Corporate Broker, 149 5th Avenue,, New York, NY 10010
Unavailable
Rented on 10/25/2025
Days on market
15 days
Last price change
No changes
About
Stylish Duplex Loft with Private Terrace
APARTMENT
This beautifully renovated condominium loft blends design and functionality with east and west exposures, high ceilings, and a balcony overlooking the building’s dramatic central atrium.
Every detail was thoughtfully executed—from the fumed oak floors to the chef’s kitchen outfitted with Gaggenau and Miele appliances, black quartzite countertops, and custom cabinetry.
Policies
Pets allowed
Cats and dogs allowed
Home features
Dishwasher
Furnished
Hardwood floors
Private outdoor space
Balcony
Washer/dryer
Building amenities
Services and facilities
Elevator
Wellness and recreation
No info on wellness and recreation
Shared outdoor space
No info on shared outdoor space
About the building
130 Barrow Street
130 Barrow Street, New York, NY 10014
83 units
6 stories
1920 built
Property history
Prices shown are base rent only. For total monthly price and additional fees, see .
| Date | Base rent | Event |
|---|---|---|
10/25/2025 | $8,995 | Rented by Sotheby's International Realty |
10/10/2025 | $8,995 | Listed by Sotheby's International Realty |
Past listing photos
Sign in to take a closer look at how this home compares to similar homes.
Explore West Village
Transit
| Location | Distance |
|---|---|
PATHat Christopher Street Station | 0.14 miles |
1at Houston St | 0.31 miles |
1at Christopher St–Sheridan Sq | 0.33 miles |
ABCDEFMat West 4th St | 0.41 miles |
CEat Spring St | 0.5 miles |
About West Village
Rental prices shown are base rent before any fees. Visit listings for cost and fees breakdown.
SalesMedian asking price
2 beds
$2.75M
RentalsMedian asking base rent
2 beds
$6,500
Picture a romantic comedy set in New York City: The heroine invariably lives in a cozy walk-up on a cobblestone street in a neighborhood with cute boutiques and trendy cafes on every corner. This movie is set in the West Village. In reality, the West Village is just as picturesque: The neighborhood is tucked between Greenwich Village and the Hudson River and is one of the quietest and most sophisticated pockets of Downtown Manhattan. Primarily residential, with a distinct lack of office buildings, the leafy, off-the-grid streets are peaceful during the day but get livelier at night. That's when well-heeled residents, fashionistas, and literati can all be found mingling over oysters at the area's many low-lit cocktail bars.
Learn more about West VillageSimilar homes
Prices shown are base rent only and don't include any fees. Visit each listing to see a complete cost breakdown.
Similar Homes looks at ad spend and other factors like location, price, and number of beds and baths.












































































































































































