3,687 ft²
$812 per ft²
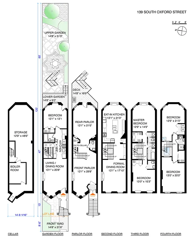
11 rooms
5 beds
3.5 baths
Two-family home
- Fort Greene
recorded sale
Sold on 3/9/2016
Verified by closing records
Last listed for $2,995,000
Seller's agent
This home has been saved by 55 users.
Listing by Corcoran, Limited Liability Broker, 110 5th Avenue, New York, NY 10011 | Brokerage Listing ID: 3610807
Common charges
Not applicable
Estimated payment
$15,269/mo
Legal disclaimerAll calculations are estimates provided by StreetEasy for informational purposes only. Actual amounts or financing terms may vary. Please contact your mortgage provider for specifics.Taxes
$265/mo
Tax abatement
No info
About
Seller’s agent
Buyer’s agent
description
Mint-condition, 2-family, 5-story 1880s townhouse with private front yard and extra-long rear yard with deck in perfect Fort Greene location. This entire home has been meticulously restored leaving no detail untouched and boasts an original mahogany center staircase, original plaster moldings, four fireplaces (2 of which are wood-burning), inlaid hardwood floors, oversized double-hung windows, lovely custom built-ins and central A/C.
Policies
Sorry, policy info isn’t available right now. Check back later.
Home features
No info on home features
Building amenities
No info on building amenities
About the building
139 South Oxford Street
139 South Oxford Street, Brooklyn, NY 11217
2 units
4 stories
1899 built
For sale
0 available units for saleFor rent
0 available units for rentDocuments and permits
View documents and permitsProperty history
- Price Change: No changes
- Days on market: 30 daysThis is the number of days the listing has been on StreetEasy.
| Date | Price | Event |
|---|---|---|
3/9/2016 | $2,995,000 | Sold by Corcoran |
3/9/2016 | $2,995,000 | No longer available |
3/9/2016 | $2,995,000 | Sold by Corcoran |
2/10/2016 | $2,995,000 | No longer available |
2/10/2016 | $2,995,000 | In contract |
Past listing photos
Sign in to take a closer look at how this home compares to similar homes.
Explore Fort Greene
Transit
| Location | Distance |
|---|---|
Cat Lafayette Av | under 500 feet |
LIRRat Atlantic Terminal | 0.18 miles |
Gat Fulton St | 0.23 miles |
BDNQR2345at Atlantic Av–Barclays Ctr | 0.25 miles |
23at Bergen St | 0.31 miles |
About Fort Greene
Rental prices shown are base rent before any fees. Visit listings for cost and fees breakdown.
SalesMedian asking price
5 beds
$3.55M
RentalsMedian asking base rent
5 beds
$25,000
With bustling flea markets, a world-renowned performance space, trendy boutiques, fabulous restaurants, and a rich literary and artistic tradition, Fort Greene attracts residents looking for a slower pace of living without sacrificing the vibrancy of urban life. Historic brownstones and row houses make up most of the available real estate, and it's common to find neighbors catching up on their stoops. Intense Brooklyn pride is in evidence on the main drag of Fulton Street, where a Notorious B.I.G. quote is painted on the side of a prominent building - "Spread love it's the Brooklyn way."
Learn more about Fort Greene







































































































































































































































