$6,500
For Rent
Base rent only. For total monthly price and additional fees, see .
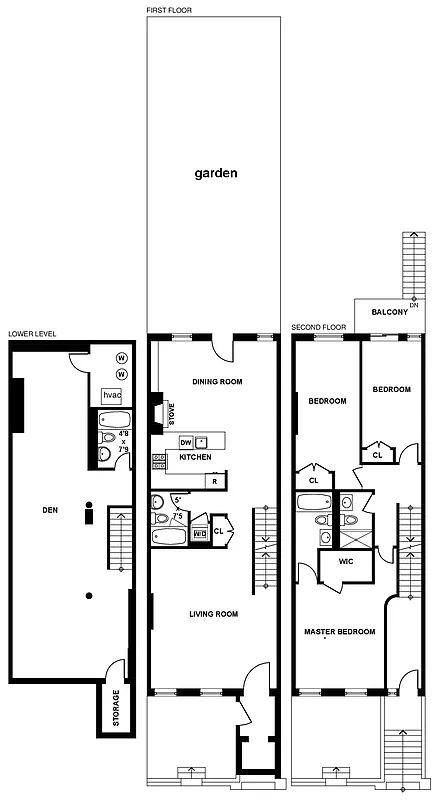
2,500 ft²
$31 per ft²
7 rooms
3 beds
4 baths
Two-family home
- Central Harlem
Under NYC law, you can't be charged a broker fee if you didn't hire a broker.
Listed By
Owner
This home has been saved by 2 users.
Listing by Owner
Available
5/1/2026
Days on market
Listed today
Last price change
No changes
About
Classic beautiful Harlem garden townhouse , balcony finished basement ,
Policies
Sorry, policy info isn’t available right now. Check back later.
Home features
Central air
Dishwasher
Hardwood floors
Private outdoor space
Balcony, Garden
View
Garden
Washer/dryer
Building amenities
Services and facilities
No info on services and facilities
Wellness and recreation
No info on wellness and recreation
Shared outdoor space
Courtyard
About the building
145 West 132nd Street
145 West 132nd Street, New York, NY 10027
2 units
3 stories
1910 built
Property history
Prices shown are base rent only. For total monthly price and additional fees, see .
| Date | Base rent | Event |
|---|---|---|
2/5/2026 | $6,500 | Listed by Owner |
7/7/2016 | $5,250 | |
5/31/2016 | $5,250 | Price decreased by 13% |
4/7/2016 | $6,000 | |
3/7/2014 | $4,700 |
Past listing photos
Sign in to take a closer look at how this home compares to similar homes.
Explore Central Harlem
Transit
| Location | Distance |
|---|---|
23at 135th St | 0.15 miles |
BCat 135th St | 0.34 miles |
23at 125th St | 0.36 miles |
ABCDat 125th St | 0.4 miles |
3at 145th St | 0.63 miles |
About Central Harlem
Rental prices shown are base rent before any fees. Visit listings for cost and fees breakdown.
SalesMedian asking price
3 beds
$1.16M
RentalsMedian asking base rent
3 beds
$3,325
Harlem begins directly above Central Park, where you will find busy thoroughfares adjacent to quiet tree-lined blocks lined with brownstones and pre-war apartment buildings.
Learn more about Central HarlemSimilar homes
Prices shown are base rent only and don't include any fees. Visit each listing to see a complete cost breakdown.
Similar Homes looks at ad spend and other factors like location, price, and number of beds and baths.
















































































































































































