$4,100
For Rent
Base rent only. For total monthly price and additional fees, see .
Delisted 9/3/2025
- ft²
4 rooms
2 beds
1 bath
Rental unit
- Lenox Hill
Under NYC law, you can't be charged a broker fee if you didn't hire a broker.
Listed By
This home has been saved by 12 users.
Listing by Urban Furnished LLC, Real Estate Principal Office, 80 Eigth Avenue, New York, NY 10003
Unavailable
Delisted on 9/3/2025
Days on market
4 days
Last price change
No changes
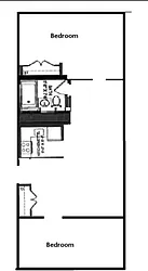
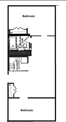
About
Spanning half the floor, this bright and beautifully designed two-bedroom home offers exceptional space and comfort. Featuring brand-new finishes throughout, a fully equipped open kitchen, and a spacious layout, this apartment is ideal for modern living.
Enjoy a renovated walk-in shower and bath, abundant closet space, and oversized rooms rarely found at this price point — currently priced below...
Policies
Sorry, policy info isn’t available right now. Check back later.
Home features
Central air
Dishwasher
Hardwood floors
Building amenities
No info on building amenities
About the building
1462 2nd Avenue
1462 2nd Avenue, New York, NY 10075
8 units
5 stories
1910 built
Property history
Prices shown are base rent only. For total monthly price and additional fees, see .
| Date | Base rent | Event |
|---|---|---|
9/3/2025 | $4,100 | Delisted by Urban Furnished LLC |
8/20/2025 | $4,100 | In contract |
8/16/2025 | $4,100 | Listed by Urban Furnished LLC |
8/11/2022 | $3,600 | |
8/2/2022 | $3,600 |
Past listing photos
Sign in to take a closer look at how this home compares to similar homes.
Explore Lenox Hill
Transit
| Location | Distance |
|---|---|
Qat 72nd St | 0.23 miles |
6at 77th St | 0.23 miles |
Qat 86th St | 0.36 miles |
6at 68th St–Hunter College | 0.49 miles |
456at 86th St | 0.54 miles |
Similar homes
Prices shown are base rent only and don't include any fees. Visit each listing to see a complete cost breakdown.
Similar Homes looks at ad spend and other factors like location, price, and number of beds and baths.












































































