View this home virtually
1,500 ft²
$1,103 per ft²
4 rooms
2 beds
2 baths
Hybrid
- Williamsburg
Sponsor unit
Sponsor unitA unit being sold for the first time. It’s typically owned by the building. For condos, this is often the developer. For co-ops, this is often the building’s original owner before it went co-op.
recorded sale
Sold on 5/5/2016
Verified by closing records
Last listed for $1,650,000
Seller's agent
This home has been saved by 74 users.
Listing by Level Group, Corporate Broker, 401 New Karner Road, Albany, NY 12205 | Brokerage Listing ID: 67562
Common charges
$594/mo
Estimated payment
$9,113/mo
Legal disclaimerAll calculations are estimates provided by StreetEasy for informational purposes only. Actual amounts or financing terms may vary. Please contact your mortgage provider for specifics.Taxes
$149/mo
Tax abatement
J-51 expires in 2026
About
Seller’s agent
description
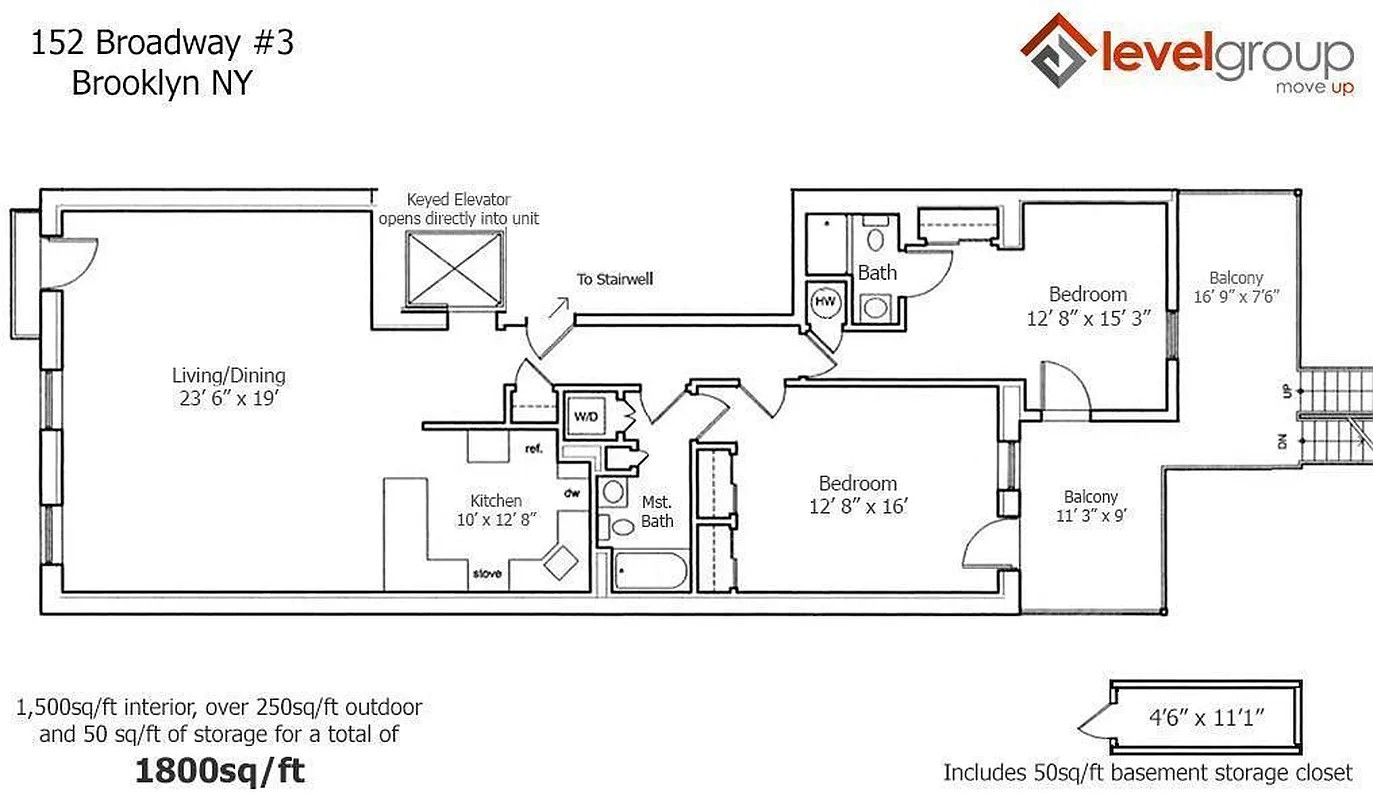
SOLD - Totaling 1800 sq. ft. (1500sqft interior) with outdoor space and storage included. This full-floor loft is why people move to Brooklyn. When you step off of the key-locked elevator directly into your apartment, you immediately encounter a massive 23' 6" x 19 living room. The decorative fireplace is the focal point of the room. The oversize double-pane windows keep the noise out while letting you take in the remarkable cityscape that Broadway has become.
Policies
Sorry, policy info isn’t available right now. Check back later.
Home features
Central air
Dishwasher
Fireplace
Loft
Private outdoor space
Balcony
Washer/dryer
Building amenities
Services and facilities
Elevator
Storage space
Wellness and recreation
No info on wellness and recreation
Shared outdoor space
Deck
Roof deck
About the building
152 Broadway
152 Broadway, Brooklyn, NY 11211
5 units
6 stories
1910 built
For sale
0 available units for saleFor rent
0 available units for rentDocuments and permits
View documents and permitsProperty history
- Price Change: ↓ $50,000 (-2.9%) on 10/27/15
- Days on market: 108 daysThis is the number of days the listing has been on StreetEasy.
| Date | Price | Event |
|---|---|---|
5/5/2016 | $1,655,000 | Sold by Level Group |
1/11/2016 | $1,650,000 | In contract |
10/27/2015 | $1,650,000 | Price decreased by 3% |
9/25/2015 | $1,700,000 | |
9/25/2015 | $1,700,000 | Listed by Level Group |
Past listing photos
Sign in to take a closer look at how this home compares to similar homes.
Explore Williamsburg
Transit
| Location | Distance |
|---|---|
JMZat Marcy Av | 0.25 miles |
Ferryat South 8th Street Ferry landing | 0.31 miles |
JMat Hewes St | 0.51 miles |
Lat Bedford Av | 0.6 miles |
GLat Metropolitan Av | 0.66 miles |
About Williamsburg
Rental prices shown are base rent before any fees. Visit listings for cost and fees breakdown.
SalesMedian asking price
2 beds
$1.95M
RentalsMedian asking base rent
2 beds
$5,350
Williamsburg is Brooklyn's booming epicenter with a well-deserved and worldwide reputation for being an influential hub thanks to a thriving cultural scene. Here you will find eye-catching new construction, brownstones, and prewars sitting next to historic buildings on streets dotted with restaurants, art spaces, boutiques, and more. With a Manhattan-facing waterfront (hello Domino Park!) and its large weekend markets (we're talking about you, Smorgasburg, and Artists & Fleas), the neighborhood is ideal for strolling and people watching. Another fringe benefit is Williamsburg's proximity to Manhattan via the G, L, M, and N subway lines.
Learn more about Williamsburg
















































































































