$840,000
For Sale
No longer available 8/3/2025
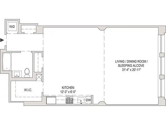
922 ft²
$911 per ft²
2 rooms
Studio
1 bath
Condo
- Waterfront
Sponsor unit
Sponsor unitA unit being sold for the first time. It’s typically owned by the building. For condos, this is often the developer. For co-ops, this is often the building’s original owner before it went co-op.
Seller's agent
Toll Brothers Real Estate Inc.
This home has been saved by 11 users.
Listing by Toll Brothers Real Estate Inc. | MLS #: 250013462
Common charges
No info
Estimated payment
$4,102/mo
Legal disclaimerAll calculations are estimates provided by StreetEasy for informational purposes only. Actual amounts or financing terms may vary. Please contact your mortgage provider for specifics.Taxes
No info
Tax abatement
No info
About
Seller’s agent
description
Experience elevated urban living in Residence 511 at 155 Bay Street, nestled in Jersey City's vibrant Powerhouse Arts District. This thoughtfully designed 922 sq. ft. loft studio, one-bathroom home blends modern form with refined function. Expansive 8ft. east-facing windows flood the space with natural light, enhancing the sleek, minimalist design and white oak flooring. This home offers 13ft.
Policies
Pets allowed
Home features
Central air
Dishwasher
Washer/dryer
Building amenities
Services and facilities
Bike room
Doorman
Elevator
Laundry in building
Package room
Parking
Storage space
Wellness and recreation
Children's playroom
Gym
Swimming pool
Shared outdoor space
Deck
Roof deck
About the building
155 Bay Street at Provost Square
155 Bay Street, Jersey City, NJ 07302
259 units
34 stories
2024 built
Property history
- Price Change: No changes
- Days on market: 32 daysThis is the number of days the listing has been on StreetEasy.
| Date | Price | Event |
|---|---|---|
8/3/2025 | $840,000 | No longer available |
7/2/2025 | $840,000 | Listed by Toll Brothers Real Estate Inc. |
Sign in to take a closer look at how this home compares to similar homes.
Explore Waterfront
Transit
| Location | Distance |
|---|---|
PATHat Grove Street Station | under 500 feet |
HBLRat Marin Blvd. | 0.42 miles |
HBLRat Harborside | 0.44 miles |
HBLRat Jersey Ave. | 0.5 miles |
HBLRPATHat Exchange Pl. | 0.53 miles |












































































































































































































































