$2,700
For Rent
Base rent only. For total monthly price and additional fees, see .
Rented 1/30/2018
- ft²
3 rooms
1 bed
1 bath
Rental unit
- Financial District
Under NYC law, you can't be charged a broker fee if you didn't hire a broker.
Listed By
This home has been saved by 32 users.
Listing by Halstead Real Estate, 100 Fifth Avenue, New York, NY 10011 | MLS #: 17719345
Unavailable
Rented on 1/30/2018
Days on market
92 days
Last price change
↓ $100 (-3.6%) on 1/10/18
About
NO FEE FLEX 2BR
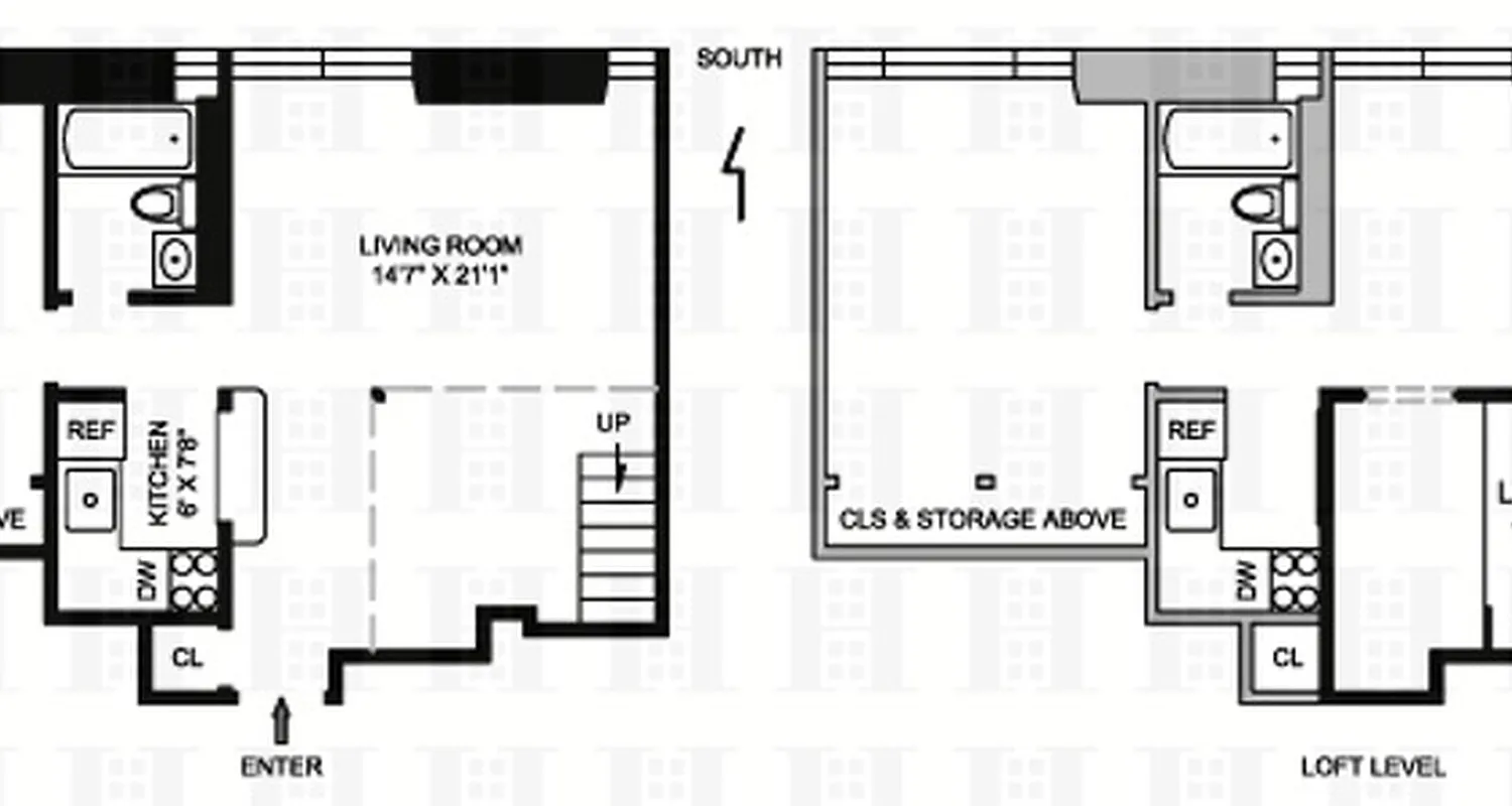
This large lofty one bedroom has a renovated pass through kitchen, new bathroom, and new hardwood floors. Ceilings are 12 feet plus, there is an over abundance of closet and storage space, plus a bonus mezzanine sleep loft with stand up height. The apartment functions well as a 2 BR. The exposure is South through 9 foot windows.
Policies
Sorry, policy info isn’t available right now. Check back later.
Home features
Loft
Building amenities
Services and facilities
Elevator
Laundry in building
Live-in super
Storage space
Wellness and recreation
No info on wellness and recreation
Shared outdoor space
No info on shared outdoor space
About the building
156 Front Street
156 Front Street, New York, NY 10038
63 units
9 stories
1930 built
Property history
Prices shown are base rent only. For total monthly price and additional fees, see .
| Date | Base rent | Event |
|---|---|---|
11/5/2018 | $2,700 | Rented by Halstead Real Estate |
1/30/2018 | $2,700 | No longer available |
1/10/2018 | $2,700 | Price decreased by 4% |
1/2/2018 | $2,800 | Price decreased by 3% |
12/7/2017 | $2,895 | Price decreased by 3% |
Past listing photos
Sign in to take a closer look at how this home compares to similar homes.
Explore Financial District
Transit
| Location | Distance |
|---|---|
Ferryat Pier 11 Ferry Landing | 0.17 miles |
23at Wall St | 0.18 miles |
ACJZ2345at Fulton St | 0.24 miles |
JZat Broad St | 0.26 miles |
45at Wall St | 0.34 miles |
About Financial District
Rental prices shown are base rent before any fees. Visit listings for cost and fees breakdown.
SalesMedian asking price
1 bed
$990K
RentalsMedian asking base rent
1 bed
$5,212
During the day, the Financial District can be chaotic with an influx of office workers and tourists attracted to the many historical sites, museums, and phenomenal views the neighborhood offers. After the workday crowds clear, the neighborhood becomes quiet and calm. Nightlife is confined to a few small areas, as most residents return to their amenity-rich buildings and rooftop patios.
Learn more about Financial DistrictSimilar homes
Prices shown are base rent only and don't include any fees. Visit each listing to see a complete cost breakdown.
Similar Homes looks at ad spend and other factors like location, price, and number of beds and baths.
















































































































































