$10,000
For Rent
Base rent only. For total monthly price and additional fees, see .
Rented 12/14/2015
- ft²
8 rooms
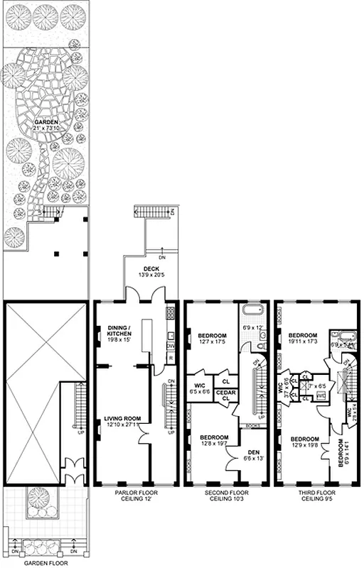
4 beds
2 baths
Two-family home
- Prospect Heights
Under NYC law, you can't be charged a broker fee if you didn't hire a broker.
Listed By
This home has been saved by 1 user.
Listing by Brown Harris Stevens, Real Estate Principal Office, 43 North Moore Street, New York, NY 10013 | MLS #: 13776081
Unavailable
Rented on 12/14/2015
Days on market
42 days
Last price change
↓ $2,000 (-16.7%) on 11/16/15
About
Short Term Furnished Townhouse Rental
Available January 2016 - June 2016 (and possibly through August). Furnished, elegant, & bright 21'-wide 1871 Italianate brownstone for rent on a quiet leafy side street in Prospect Heights, Brooklyn. Grand fourteen-foot ceilings on the parlor floor, four large bedrooms, two full baths, den/playroom, deck, piano, and 50' private garden. 2,400 square feet of inviting, sunny living space.
Policies
Sorry, policy info isn’t available right now. Check back later.
Home features
Furnished
Private outdoor space
Balcony, Garden
Washer/dryer
Building amenities
Services and facilities
Laundry in building
Wellness and recreation
No info on wellness and recreation
Shared outdoor space
Deck
About the building
159 Prospect Place
159 Prospect Place, Brooklyn, NY 11238
2 units
3 stories
1910 built
Property history
Prices shown are base rent only. For total monthly price and additional fees, see .
| Date | Base rent | Event |
|---|---|---|
5/16/2016 | $10,000 | Rented by Brown Harris Stevens |
12/14/2015 | $10,000 | No longer available |
11/16/2015 | $10,000 | Price decreased by 17% |
11/2/2015 | $12,000 | Listed by Brown Harris Stevens |
Past listing photos
Sign in to take a closer look at how this home compares to similar homes.
Explore Prospect Heights
Transit
| Location | Distance |
|---|---|
BQat 7th Av | under 500 feet |
23at Grand Army Plaza | 0.22 miles |
23at Bergen St | 0.24 miles |
LIRRat Atlantic Terminal | 0.42 miles |
Cat Clinton & Washington Avs | 0.42 miles |
About Prospect Heights
Rental prices shown are base rent before any fees. Visit listings for cost and fees breakdown.
SalesMedian asking price
4 beds
$2M
Prospect Heights offers a vibrant mix of old and new Brooklyn. Often referred to as a fallback for people unable to afford Park Slope, the area has recently become known for its own unique personality - as well as its rising real estate value. The commercial strips of Vanderbilt and Washington Avenues offer a mix of bodegas and inveterate neighborhood standbys next to a new spate of hipster-centric bars and restaurants. Turn down any side street, however, and you can encounter gorgeous old brownstones surrounded by quiet greenery.
Learn more about Prospect HeightsSimilar homes
Prices shown are base rent only and don't include any fees. Visit each listing to see a complete cost breakdown.
Similar Homes looks at ad spend and other factors like location, price, and number of beds and baths.
































































































































