View this home virtually
- ft²
4 rooms
Studio
1 bath
Co-op
- Flatiron
Resale
reported sale
Sold on 3/14/2025
Not yet verified by closing records
Seller's agent
This home has been saved by 38 users.
Listing by Compass, Corporate Broker, 110 5th Avenue, New York, NY 10011
Maintenance fees
$1,058/mo
Estimated payment
$4,997/mo
Legal disclaimerAll calculations are estimates provided by StreetEasy for informational purposes only. Actual amounts or financing terms may vary. Please contact your mortgage provider for specifics.Taxes
Included in maintenance fees
Tax abatement
No info
About
Seller’s agent
description
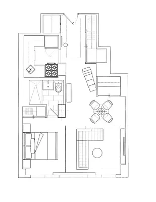
Mint-Condition, Fully-Renovated, South-Facing L-Shaped Alcove Studio in Flatiron
Premier Doorman Building | Excellent Closet / Storage Space | Low Monthly Maintenance
Convertible to 1 Bedroom - Seller will offer a closing credit toward constructing a wall, if purchaser prefers the separation - See alternate floorplan
Welcome home to your peaceful urban oasis! This stunning, gut-renovated apartment is...
Policies
Co-purchase allowed
Guarantors accepted
Pets allowed
Cats and dogs allowed
Pied-a-terre allowed
Sublets allowed
Home features
Dishwasher
Hardwood floors
View
Garden
Building amenities
Services and facilities
Bike room
Doorman
Full-time
Elevator
Laundry in building
Live-in super
Package room
Parking
Garage
Wellness and recreation
No info on wellness and recreation
Shared outdoor space
No info on shared outdoor space
About the building
16 West 16th Street
16 West 16th Street, New York, NY 10011
485 units
14 stories
1964 built
For sale
5 available units for saleFor rent
0 available units for rentDocuments and permits
View documents and permitsProperty history
- Price Change: ↓ $10,000 (-1.3%) on 3/14/25
- Days on market: 66 daysThis is the number of days the listing has been on StreetEasy.
| Date | Price | Event |
|---|---|---|
3/14/2025 | $765,000 | Sold by Compass |
3/14/2025 | $765,000 | Price decreased by 1% |
12/12/2024 | $775,000 | In contract |
10/7/2024 | $775,000 | Listed by Compass |
3/11/2025 | $765,000 |
Past listing photos
Sign in to take a closer look at how this home compares to similar homes.
Explore Flatiron
Transit
| Location | Distance |
|---|---|
FLM123at 14th St | 0.12 miles |
FLM123at 6th Av | 0.15 miles |
PATHat 14th Street Station | 0.16 miles |
LNQRW456at 14th St–Union Square | 0.18 miles |
1at 18th St | 0.31 miles |
About Flatiron
Rental prices shown are base rent before any fees. Visit listings for cost and fees breakdown.
SalesMedian asking price
Studio
$725K
RentalsMedian asking base rent
Studio
$4,050
Flatiron is a historic New York City neighborhood that has seen its fair share of change over the years. In the early 1900s, it was a major commercial and residential center. By the middle of the century, things stagnated as businesses and residents left in search of more space and lower rents. In recent years, stores, upscale restaurants, and new developments moved back in, and the neighborhood is seeing a significant resurgence. Fifth Avenue now bustles with some of the best shopping in the city, and restaurants run the gamut from Michelin-rated to Yelp-reviewed food trucks.
Flatiron is busiest at midday and cocktail hour and tends to quiet down a bit at night, although the lights never truly turn off. Proximity to Union Square and multiple subway lines make it an equally easy trip to Midtown or Downtown.




























































































