$7,495
For Rent
Base rent only. For total monthly price and additional fees, see .
Rented 4/2/2025
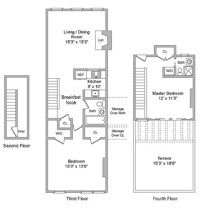
- ft²
5 rooms
2 beds
2 baths
Mixed-use building
- Upper West Side
Under NYC law, you can't be charged a broker fee if you didn't hire a broker.
Listed By
This home has been saved by 92 users.
Listing by Douglas Elliman, Limited Liability Broker, 575 Madison Avenue -, New York, NY 10022 | Brokerage Listing ID: 23327192
Unavailable
Rented on 4/2/2025
Days on market
5 days
Last price change
No changes
About
Available immediately. No Pets. Quick and easy application process. 2 year lease.
Don’t miss this fantastic opportunity to reside in a stunning loft-like duplex on the third and fourth floors, in a two family owner-occupied townhouse, located on one of the Upper West Side’s gorgeous tree-lined blocks.
Policies
Sorry, policy info isn’t available right now. Check back later.
Home features
Fireplace
Hardwood floors
Private outdoor space
Roof deck
View
City, Skyline
Washer/dryer
Building amenities
Services and facilities
Laundry in building
Wellness and recreation
No info on wellness and recreation
Shared outdoor space
Roof deck
About the building
161 West 88th Street
161 West 88th Street, New York, NY 10024
2 units
3 stories
1901 built
Property history
Prices shown are base rent only. For total monthly price and additional fees, see .
| Date | Base rent | Event |
|---|---|---|
4/2/2025 | $7,495 | Rented by Douglas Elliman |
2/18/2025 | $7,495 | In contract |
2/13/2025 | $7,495 | Listed by Douglas Elliman |
10/28/2022 | $5,950 | |
10/27/2022 | $5,950 |
Past listing photos
Sign in to take a closer look at how this home compares to similar homes.
Explore Upper West Side
Transit
| Location | Distance |
|---|---|
1at 86th St | 0.17 miles |
BCat 86th St | 0.27 miles |
123at 96th St | 0.29 miles |
BCat 81st St–Museum of Natural History | 0.45 miles |
BCat 96th St | 0.46 miles |
About Upper West Side
Rental prices shown are base rent before any fees. Visit listings for cost and fees breakdown.
SalesMedian asking price
2 beds
$1.65M
RentalsMedian asking base rent
2 beds
$6,295
Sandwiched between two beautiful parks, the Upper West Side is one of the greenest spots in Manhattan. For that reason, it is a perennial favorite. The Upper West Side is relaxed, but never dull. There are plenty of low-key bars and restaurants to frequent along Amsterdam Avenue, and Broadway is an always-bustling commercial center. The wide, tree-lined streets still boast many mom-and-pop stores. Less posh than the Upper East Side, it is more easily accessible by public transportation, and real estate prices are just as, if not more, expensive.
Learn more about Upper West SideSimilar homes
Prices shown are base rent only and don't include any fees. Visit each listing to see a complete cost breakdown.
Similar Homes looks at ad spend and other factors like location, price, and number of beds and baths.









































































































































































































