5,827 ft²
$1,574 per ft²
12 rooms
6 beds
7.5 baths
Two-family home
- Upper West Side
Resale
recorded sale
Sold on 8/19/2025
Verified by closing records
Last listed for $9,000,000
Seller's agent
This home has been saved by 24 users.
Listing by Brown Harris Stevens, Real Estate Principal Office, 1934 Broadway, New York, NY 10023
Common charges
Not applicable
Estimated payment
$45,509/mo
Legal disclaimerAll calculations are estimates provided by StreetEasy for informational purposes only. Actual amounts or financing terms may vary. Please contact your mortgage provider for specifics.Taxes
No info
Tax abatement
No info
About
Seller’s agent
description
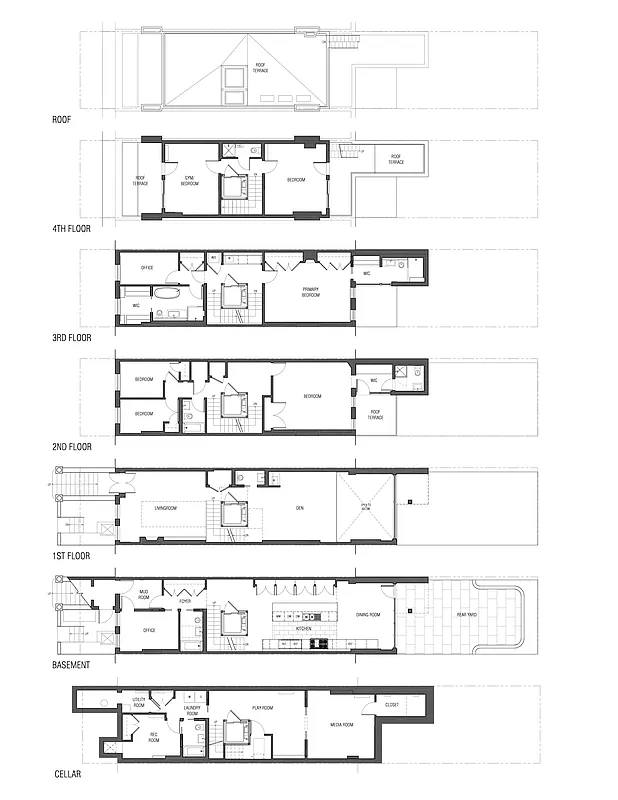
Beautifully Renovated Single-Family Home on the Upper West Side
Welcome to 163 West 87th Street, an extraordinary 5-story elevator single-family townhouse perfectly situated on a charming tree-lined street, just moments away from Central Park. Originally designed by renowned architect Gilbert A. Schellenger in 1889-1890, the home’s traditional façade conceals a stunning modern interior, seamlessly blending original architectural details with contemporary luxury and conveniences.
Policies
Sorry, policy info isn’t available right now. Check back later.
Home features
Central air
Dishwasher
Fireplace
Gas, Wood
Hardwood floors
Private outdoor space
Balcony, Garden, Roof deck, Terrace
View
Garden
Washer/dryer
Building amenities
Services and facilities
Laundry in building
Wellness and recreation
No info on wellness and recreation
Shared outdoor space
Courtyard
Roof deck
About the building
163 West 87th Street
163 West 87th Street, New York, NY 10024
2 units
3 stories
1906 built
For sale
0 available units for saleFor rent
0 available units for rentDocuments and permits
View documents and permitsProperty history
- Price Change: No changes
- Days on market: 39 daysThis is the number of days the listing has been on StreetEasy.
| Date | Price | Event |
|---|---|---|
8/19/2025 | $9,175,000 | Sold by Brown Harris Stevens |
6/20/2025 | $9,000,000 | In contract |
5/12/2025 | $9,000,000 | Listed by Brown Harris Stevens |
Past listing photos
Sign in to take a closer look at how this home compares to similar homes.
Explore Upper West Side
Transit
| Location | Distance |
|---|---|
1at 86th St | 0.14 miles |
BCat 86th St | 0.27 miles |
123at 96th St | 0.33 miles |
BCat 81st St–Museum of Natural History | 0.41 miles |
1at 79th St | 0.44 miles |
About Upper West Side
Rental prices shown are base rent before any fees. Visit listings for cost and fees breakdown.
SalesMedian asking price
6 beds
$12.69M
RentalsMedian asking base rent
6 beds
$55,000
Sandwiched between two beautiful parks, the Upper West Side is one of the greenest spots in Manhattan. For that reason, it is a perennial favorite. The Upper West Side is relaxed, but never dull. There are plenty of low-key bars and restaurants to frequent along Amsterdam Avenue, and Broadway is an always-bustling commercial center. The wide, tree-lined streets still boast many mom-and-pop stores. Less posh than the Upper East Side, it is more easily accessible by public transportation, and real estate prices are just as, if not more, expensive.
Learn more about Upper West Side











































































































































































