- ft²
3 rooms
2 beds
1 bath
Co-op
- Tribeca
recorded sale
Sold on 4/30/2015
Verified by closing records
Last listed for $2,095,000
Seller's agent
This home has been saved by 48 users.
Listing by Corcoran, Limited Liability Broker, 590 Madison Avenue, New York, NY 10022 | Brokerage Listing ID: 3381523
Maintenance fees
$2,086/mo
Estimated payment
$12,679/mo
Legal disclaimerAll calculations are estimates provided by StreetEasy for informational purposes only. Actual amounts or financing terms may vary. Please contact your mortgage provider for specifics.Taxes
Included in maintenance fees
Tax abatement
No info
About
Seller’s agent
Buyer’s agent
description
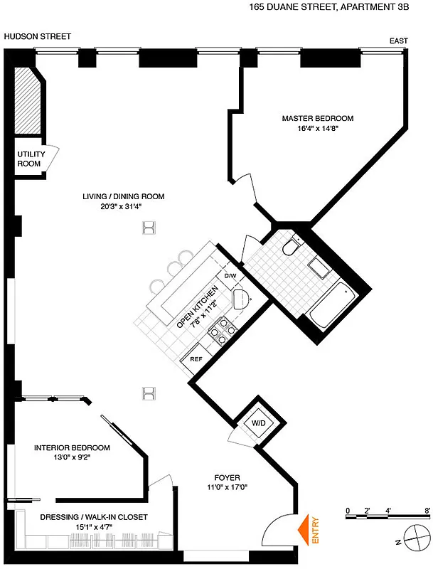
Classic Tribeca loft located in the very best part of Tribeca, on one of the very best streets, directly across from Duane Park. The loft has outstanding architectural features including high ceilings, exposed brick, oversized windows, hardwood floors and two big, bold wood beams and steel columns that define the space. The loft is spacious at over 1350 square feet.
Policies
Pets allowed
Cats and dogs allowed
Home features
Loft
Building amenities
Services and facilities
Bike room
Elevator
Storage space
Wellness and recreation
No info on wellness and recreation
Shared outdoor space
Roof deck
About the building
165 Duane Street
165 Duane Street, New York, NY 10013
42 units
10 stories
1881 built
For sale
1 available units for saleFor rent
0 available units for rentDocuments and permits
View documents and permitsProperty history
- Price Change: No changes
- Days on market: 43 daysThis is the number of days the listing has been on StreetEasy.
| Date | Price | Event |
|---|---|---|
4/30/2015 | $2,095,000 | Sold by Corcoran |
4/30/2015 | $2,095,000 | No longer available |
1/13/2015 | $2,095,000 | In contract |
12/1/2014 | $2,095,000 | Listed by Corcoran |
7/14/2014 | $2,295,000 |
Past listing photos
Sign in to take a closer look at how this home compares to similar homes.
Explore Tribeca
Transit
| Location | Distance |
|---|---|
123at Chambers St | 0.12 miles |
1at Franklin St | 0.16 miles |
ACE23at Chambers St | 0.18 miles |
Eat World Trade Center | 0.28 miles |
ACEat Canal St | 0.28 miles |
About Tribeca
Rental prices shown are base rent before any fees. Visit listings for cost and fees breakdown.
SalesMedian asking price
2 beds
$3.22M
RentalsMedian asking base rent
2 beds
$9,995
Tribeca is an upscale neighborhood known for high-end real estate and well-heeled residents — a downtown haven for European cars and pedigreed dogs. It's also a truly gorgeous area that mixes glorious old cast-iron lofts, wide cobblestone streets, and dramatic new buildings. Decades ago, these lofts housed artists and squatters. But the bohemians have given way to cool-seekers with bigger bank accounts. Now, this neighborhood is among the most expensive places to live in the city. That hasn't cost the neighborhood much of its sophistication, though. Nightlife in Tribeca remains busy but refined, attracting a cosmopolitan crowd with an appreciation for the finer things in life.
Learn more about Tribeca






































































































