$4,000
For Rent
Base rent only. For total monthly price and additional fees, see .
Rented 10/22/2025
- ft²
5 rooms
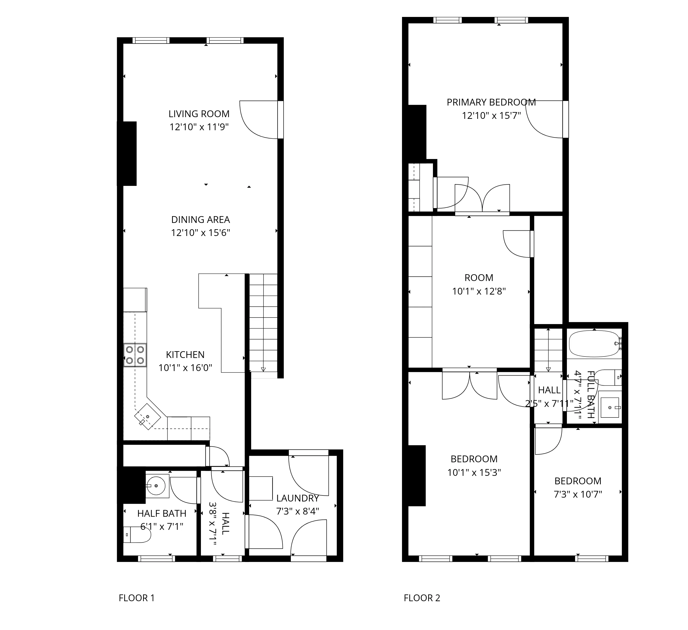
3 beds
1.5 baths
Two-family home
- Cypress Hills
Under NYC law, you can't be charged a broker fee if you didn't hire a broker.
Listed By
This home has been saved by 1 user.
Listing by Douglas Elliman, Limited Liability Broker, 575 Madison Avenue -, New York, NY 10022 | Brokerage Listing ID: 23607328
Unavailable
Rented on 10/22/2025
Days on market
6 days
Last price change
No changes
About
Welcome to this inviting duplex apartment located on the first floor of a charming two-family house built in 1899, situated in the peaceful Cypress Hills neighborhood. This comfortable home offers a generous living space with an open layout ideal for relaxing and entertaining. The unit features 4 bedrooms 2 bathrooms, including a beautifully updated dream kitchen equipped with stainless steel appliances, custom cabinetry, perfect for all your cooking needs.
Policies
Sorry, policy info isn’t available right now. Check back later.
Home features
Central air
Dishwasher
Hardwood floors
Private outdoor space
Garden
Building amenities
No info on building amenities
About the building
165 Euclid Avenue
165 Euclid Avenue, Brooklyn, NY 11208
2 units
2 stories
1899 built
Property history
Prices shown are base rent only. For total monthly price and additional fees, see .
| Date | Base rent | Event |
|---|---|---|
10/22/2025 | $4,000 | Rented by Douglas Elliman |
10/16/2025 | $4,000 | Listed by Douglas Elliman |
Past listing photos
Sign in to take a closer look at how this home compares to similar homes.
Explore Cypress Hills
Transit
| Location | Distance |
|---|---|
JZat Crescent St | 0.11 miles |
JZat Norwood Av | 0.32 miles |
Jat Cypress Hills | 0.34 miles |
JZat Elderts Lane–75th St | 0.62 miles |
ACat Euclid Av | 0.64 miles |
Similar homes
Prices shown are base rent only and don't include any fees. Visit each listing to see a complete cost breakdown.
Similar Homes looks at ad spend and other factors like location, price, and number of beds and baths.







































































































































