$8,250
For Rent
Base rent only. For total monthly price and additional fees, see .
No longer available 3/9/2018
1,450 ft²
$68 per ft²
2 rooms
1 bed
1 bath
Hybrid
- Tribeca
Under NYC law, you can't be charged a broker fee if you didn't hire a broker.
Listed By
This home has been saved by 20 users.
Listing by Sotheby's International Realty, Corporate Broker, 149 5th Avenue,, New York, NY 10010 | Brokerage Listing ID: 01310158
Unavailable
No longer available on 3/9/2018
Days on market
9 days
Last price change
No changes
About
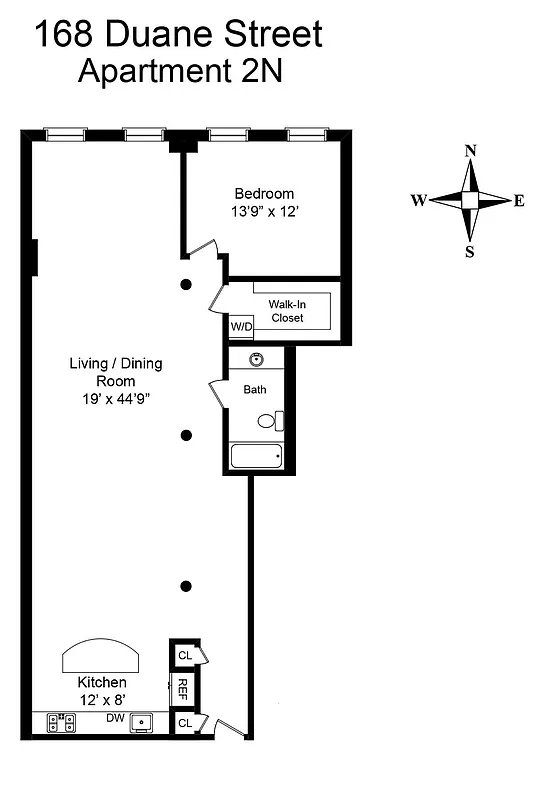
Available for rent, a spectacular light-filled loft on one of the most coveted blocks on desirable Duane Street in the heart of TriBeCa. Boasting picturesque treetop views of Duane Park, and pre-war details like 12-foot-high ceilings, four park-facing oversized windows, wrought-iron columns and exposed wood beams, this quintessential loft offers over 1,400+/- square feet of open living space.
Policies
Sorry, policy info isn’t available right now. Check back later.
Home features
Loft
Washer/dryer
Building amenities
Services and facilities
Elevator
Wellness and recreation
No info on wellness and recreation
Shared outdoor space
No info on shared outdoor space
About the building
168 Duane Street
168 Duane Street, New York, NY 10013
8 units
5 stories
1880 built
Property history
Prices shown are base rent only. For total monthly price and additional fees, see .
| Date | Base rent | Event |
|---|---|---|
3/9/2018 | $8,250 | No longer available |
2/28/2018 | $8,250 | Listed by Sotheby's International Realty |
10/5/2016 | $7,650 | |
7/22/2016 | $7,650 | |
4/15/2015 | $7,100 |
Past listing photos
Sign in to take a closer look at how this home compares to similar homes.
Explore Tribeca
Transit
| Location | Distance |
|---|---|
123at Chambers St | under 500 feet |
ACE23at Chambers St | 0.15 miles |
1at Franklin St | 0.2 miles |
Eat World Trade Center | 0.23 miles |
RWat City Hall | 0.27 miles |
About Tribeca
Rental prices shown are base rent before any fees. Visit listings for cost and fees breakdown.
SalesMedian asking price
1 bed
$1.77M
RentalsMedian asking base rent
1 bed
$6,270
Tribeca is an upscale neighborhood known for high-end real estate and well-heeled residents — a downtown haven for European cars and pedigreed dogs. It's also a truly gorgeous area that mixes glorious old cast-iron lofts, wide cobblestone streets, and dramatic new buildings. Decades ago, these lofts housed artists and squatters. But the bohemians have given way to cool-seekers with bigger bank accounts. Now, this neighborhood is among the most expensive places to live in the city. That hasn't cost the neighborhood much of its sophistication, though. Nightlife in Tribeca remains busy but refined, attracting a cosmopolitan crowd with an appreciation for the finer things in life.
Learn more about TribecaSimilar homes
Prices shown are base rent only and don't include any fees. Visit each listing to see a complete cost breakdown.
Similar Homes looks at ad spend and other factors like location, price, and number of beds and baths.
















































































































































































