$3,595
For Rent
Base rent only. For total monthly price and additional fees, see .
Rented 10/18/2023
- ft²
3 rooms
2 beds
1 bath
Four-family home
- NoMad
Under NYC law, you can't be charged a broker fee if you didn't hire a broker.
Listed By
Owner
This home has been saved by 31 users.
Listing by Owner
Unavailable
Rented on 10/18/2023
Days on market
8 days
Last price change
No changes
About
NO FEE - For Rent by Owner
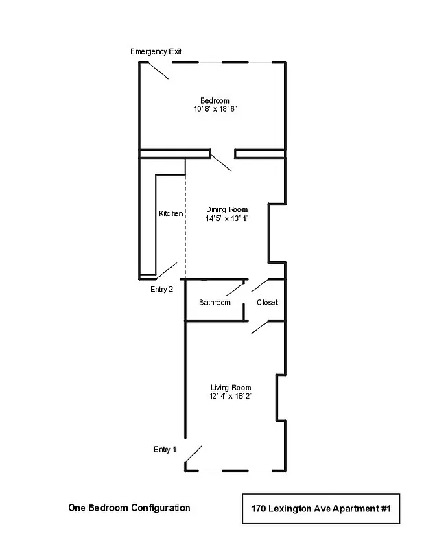
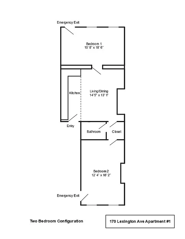
Spacious Flex 2 Basement Apartment
Can be used as a two bedroom with combined living and dining room or a one bedroom with a separate living and dining room. There are two entrances to accommodate each configuration. See floor plans for more detail.
Features:
-Newly Renovated Floors
-Floor through, with Rear Garden View
-Large Kitchen with Dishwasher
-Washer and Dryer in...
Policies
Sorry, policy info isn’t available right now. Check back later.
Home features
Dishwasher
Hardwood floors
View
Garden
Building amenities
Services and facilities
Laundry in building
Wellness and recreation
No info on wellness and recreation
Shared outdoor space
No info on shared outdoor space
About the building
170 Lexington Avenue
170 Lexington Avenue, New York, NY 10016
4 units
4 stories
1910 built
For rent
0 available units for rentProperty history
Prices shown are base rent only. For total monthly price and additional fees, see .
| Date | Base rent | Event |
|---|---|---|
10/18/2023 | $3,595 | Rented by Owner |
10/10/2023 | $3,595 | Listed by Owner |
Past listing photos
Sign in to take a closer look at how this home compares to similar homes.
Explore NoMad
Transit
| Location | Distance |
|---|---|
6at 33rd St | under 500 feet |
6at 28th St | 0.14 miles |
RWat 28th St | 0.37 miles |
6at 23rd St | 0.37 miles |
RWat 23rd St | 0.43 miles |
Similar homes
Prices shown are base rent only and don't include any fees. Visit each listing to see a complete cost breakdown.
Similar Homes looks at ad spend and other factors like location, price, and number of beds and baths.





























































































































