$4,995
For Rent
Base rent only. For total monthly price and additional fees, see .
Rented 12/3/2024
- ft²
9 rooms
3 beds
4 baths
Two-family home
- Stuyvesant Heights
Under NYC law, you can't be charged a broker fee if you didn't hire a broker.
Listed By
This home has been saved by 38 users.
Listing by Compass, Corporate Broker, 110 5th Avenue, New York, NY 10011
Unavailable
Rented on 12/3/2024
Days on market
26 days
Last price change
No changes
About
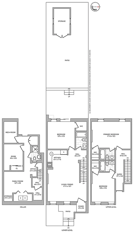
Welcome to 174 Patchen Ave, an updated townhouse triplex offering indoor and outdoor living in the heart of the historic Bedford-Stuyvesant neighborhood. This property features 3 king sized bedrooms, two of which are ensuites, and 4 full bathrooms. With a spacious private outdoor area and washer/dryer conveniently located in the basement, it won’t be hard to feel at home in this charming townhouse.
Policies
Sorry, policy info isn’t available right now. Check back later.
Home features
Central air
Dishwasher
Hardwood floors
Private outdoor space
Garden
Washer/dryer
Building amenities
No info on building amenities
About the building
174 Patchen Avenue
174 Patchen Avenue, Brooklyn, NY 11221
2 units
2 stories
1899 built
Property history
Prices shown are base rent only. For total monthly price and additional fees, see .
| Date | Base rent | Event |
|---|---|---|
12/3/2024 | $4,995 | Rented by Compass |
11/18/2024 | $4,995 | In contract |
10/23/2024 | $4,995 | Listed by Compass |
Past listing photos
Sign in to take a closer look at how this home compares to similar homes.
Explore Stuyvesant Heights
Transit
| Location | Distance |
|---|---|
JZat Gates Av | 0.38 miles |
ACat Utica Av | 0.43 miles |
ACat Ralph Av | 0.5 miles |
Jat Kosciusko St | 0.52 miles |
Jat Halsey St | 0.58 miles |
Similar homes
Prices shown are base rent only and don't include any fees. Visit each listing to see a complete cost breakdown.
Similar Homes looks at ad spend and other factors like location, price, and number of beds and baths.














































































































