View this home virtually
1,000 ft²
$705 per ft²
5 rooms
2 beds
1 bath
Co-op
- Downtown Brooklyn
Resale
recorded sale
Sold on 11/12/2020
Verified by closing records
Last listed for $725,000
Seller's agents
This home has been saved by 91 users.
Listing by Compass, Corporate Broker, 212 Court Street, Brooklyn, NY 11201
Maintenance fees
$1,386/mo
Estimated payment
$5,279/mo
Taxes
Included in maintenance fees
Tax abatement
No info
About
Seller’s agent
Buyer’s agent
description
PLEASE CONTACT SELLERS AGENT FOR ALL IN PERSON SHOWINGS!
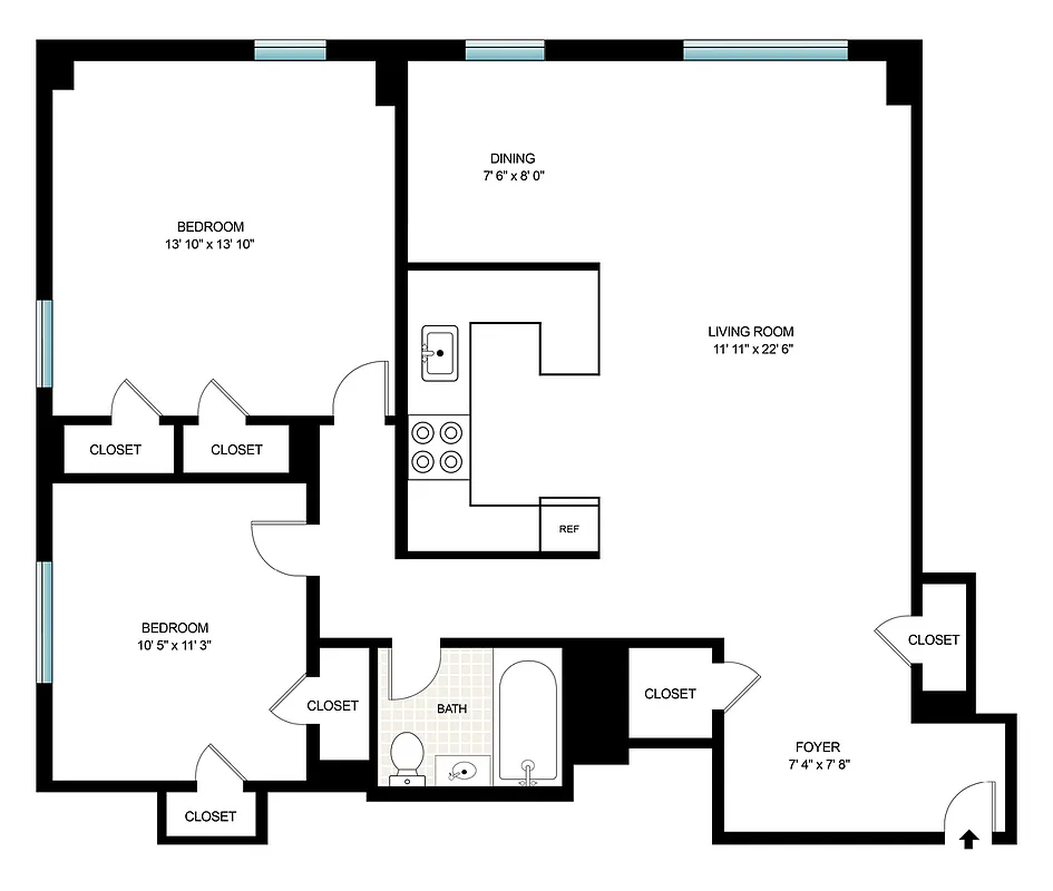
Spacious and taste renovated 2 Bedroom in Fort Greene!
This big, bright and thoughtfully designed floor plan boasts a generous L-shaped living/dining room perfect for entertaining. Enjoy a pristinely renovated open kitchen with an island. This kitchen is fully equipped with top of the line stainless steel appliances, loads of counter and cabinet space, and gorgeous countertops.
Policies
Sorry, policy info isn’t available right now. Check back later.
Home features
Dishwasher
Hardwood floors
Building amenities
Services and facilities
Bike room
Doorman
Elevator
Laundry in building
Live-in super
Package room
Parking
Wheelchair access
Wellness and recreation
Gym
Shared outdoor space
No info on shared outdoor space
About the building
175 Willoughby Street
175 Willoughby Street, Brooklyn, NY 11201
Complex:
University Towers183 units
15 stories
1958 built
For sale
4 available units for saleFor rent
0 available units for rentDocuments and permits
View documents and permitsProperty history
- Price Change: No changes
- Days on market: 43 days
| Date | Price | Event |
|---|---|---|
11/12/2020 | $705,000 | Sold by Compass |
9/1/2020 | $725,000 | In contract |
7/20/2020 | $725,000 | Listed by Compass |
Past listing photos
Sign in to take a closer look at how this home compares to similar homes.
Explore Downtown Brooklyn
Transit
| Location | Distance |
|---|---|
BQRat DeKalb Av | 0.12 miles |
ACFRat Jay St–MetroTech | 0.22 miles |
23at Hoyt St | 0.26 miles |
2345at Nevins St | 0.34 miles |
ACGat Hoyt & Schermerhorn | 0.36 miles |
About Downtown Brooklyn
Rental prices shown are base rent before any fees. Visit listings for cost and fees breakdown.
SalesMedian asking price
2 beds
$1.6M
RentalsMedian asking base rent
2 beds
$6,390
Bisected by Flatbush Avenue and bordered by the BQE, Downtown Brooklyn is a rapidly expanding residential neighborhood. Easy subway access and abundant inventory have drawn many to the area looking for luxury rentals and condos in the area's numerous new apartment towers.
Historically, Downtown Brooklyn has been the hub of the borough's municipal activities with many civil service offices and court houses centered around Cadman Plaza, the neighborhood's main hub. With tons of city employees, lawyers and Brooklynites of all types constantly bustling about, Downtown Brooklyn has a decidedly hectic vibe. This, coupled with the area's lack of green space, makes Downtown Brooklyn most appealing to those who can embrace one of Brooklyn's busiest and most trafficked neighborhoods.





































































































