$14,000
For Rent
Base rent only. For total monthly price and additional fees, see .
Rented 5/1/2022
3,186 ft²
$52 per ft²
8 rooms
5 beds
3.5 baths
Three-family home
- Cobble Hill
Under NYC law, you can't be charged a broker fee if you didn't hire a broker.
Listed By
This home has been saved by 33 users.
Listing by Compass, Corporate Broker, 110 5th Avenue, New York, NY 10011
Unavailable
Rented on 5/1/2022
Days on market
8 days
Last price change
No changes
About
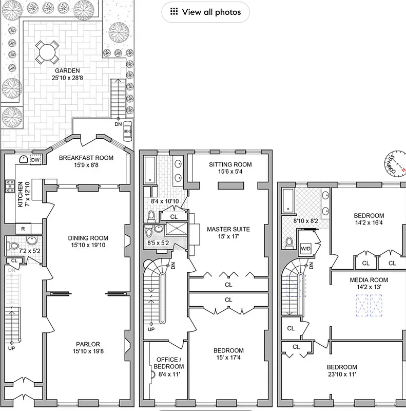
Multiple Applications in. No longer showing. Three story classic Cobble Hill townhouse available for rent! Spanning over 3,000 square feet, this owner's triplex has been lovingly maintained and is ready for the next tenants by this summer.
The parlor level offers light from the east and west and has soaring ceilings and is rich with original details including crown molding, pocket doors, original hardwood floors and two fireplaces.
Policies
Sorry, policy info isn’t available right now. Check back later.
Home features
Dishwasher
Hardwood floors
Private outdoor space
Balcony, Garden, Terrace
Washer/dryer
Building amenities
Services and facilities
Laundry in building
Wellness and recreation
No info on wellness and recreation
Shared outdoor space
Courtyard
About the building
176 Warren Street
176 Warren Street, Brooklyn, NY 11201
3 units
3 stories
1899 built
Property history
Prices shown are base rent only. For total monthly price and additional fees, see .
| Date | Base rent | Event |
|---|---|---|
5/1/2022 | $14,000 | Rented by Compass |
5/1/2022 | $14,000 | In contract |
4/23/2022 | $14,000 | Listed by Compass |
9/25/2019 | $12,000 | |
9/6/2019 | $12,000 |
Past listing photos
Sign in to take a closer look at how this home compares to similar homes.
Explore Cobble Hill
Transit
| Location | Distance |
|---|---|
FGat Bergen St | 0.34 miles |
R2345at Borough Hall/Court St | 0.46 miles |
FGat Carroll St | 0.48 miles |
ACGat Hoyt & Schermerhorn | 0.61 miles |
ACFRat Jay St–MetroTech | 0.61 miles |
About Cobble Hill
Rental prices shown are base rent before any fees. Visit listings for cost and fees breakdown.
SalesMedian asking price
5 beds
$4M
Cobble Hill is a beautiful, historic neighborhood with some of the borough's most expensive real estate. Despite the abundance of seven-figure homes, Cobble Hill has small-town vibe evident in the mom-and-pop stores and Italian influences that dot Court Street. Walk down the sunny commercial strip and you'll pass the local butcher, the baker and the fishmonger — all family-run and equally popular among local residents and foodies from far and wide.
On the side streets, the homes tend to be large brick townhouses and brownstones owned by single families, with well-kept facades and window boxes. This is a neighborhood where homeownership is a luxury, and residents take that responsibility to heart. The blocks are clean, the community associations active, and the lifestyle warm and genteel.
Similar homes
Prices shown are base rent only and don't include any fees. Visit each listing to see a complete cost breakdown.
Similar Homes looks at ad spend and other factors like location, price, and number of beds and baths.




















































































































































