9,550 ft²
$565 per ft²
35 rooms
16 beds
14 baths
Rental unit
- Borough Park
Resale
reported sale
Sold on 3/17/2024
Not yet verified by closing records
Seller's agents
This home has been saved by 4 users.
Listing by Oxford Property Group, Limited Liability Broker, 401 New Karner Road, Albany, NY 12205
Common charges
Not applicable
Estimated payment
$32,782/mo
Legal disclaimerAll calculations are estimates provided by StreetEasy for informational purposes only. Actual amounts or financing terms may vary. Please contact your mortgage provider for specifics.Taxes
$5,000/mo
Tax abatement
No info
About
Seller’s agent
description
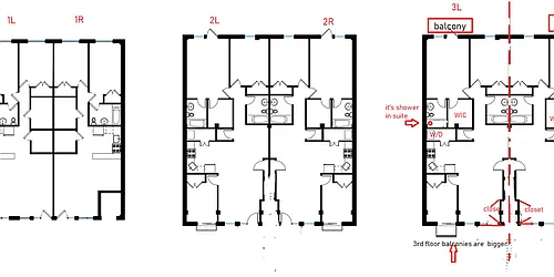
Don’t miss out on a prime investment opportunity condo conversion opportunity! This is a brand-new three-story (6) six rental units plus a commercial space in the cellar. This set up consists of Four 3 bed 2 bath with balcony units and Two 2 bed 2 bath units. (8000sqFt total) The commercial space is in the cellar and has (2) two restrooms, windows on one side and (2) two exit access plus elevator.
Policies
Sorry, policy info isn’t available right now. Check back later.
Home features
No info on home features
Building amenities
No info on building amenities
About the building
1772 61st Street
1772 61st Street, Brooklyn, NY 11204
6 units
3 stories
2017 built
For sale
0 available units for saleFor rent
0 available units for rentDocuments and permits
View documents and permitsProperty history
- Price Change: No changes
- Days on market: 475 daysThis is the number of days the listing has been on StreetEasy.
| Date | Price | Event |
|---|---|---|
3/17/2024 | $5,400,000 | Sold by Oxford Property Group |
11/28/2022 | $5,400,000 | Listed by Oxford Property Group |
Past listing photos
Sign in to take a closer look at how this home compares to similar homes.
Explore Borough Park
Transit
| Location | Distance |
|---|---|
Nat 18th Av | 0.11 miles |
Nat 20th Av | 0.35 miles |
DNat New Utrecht Av | 0.44 miles |
Dat 71st St | 0.57 miles |
DNat 62nd St | 0.58 miles |











































