3,456 ft²
$1,736 per ft²
10 rooms
4 beds
2.5 baths
House
- Carnegie Hill
recorded sale
Sold on 6/13/2016
Verified by closing records
Last listed for $6,495,000
Seller's agent
Brown Harris Stevens
This home has been saved by 38 users.
Listing by Brown Harris Stevens, Real Estate Principal Office | MLS #: 13526828
Common charges
Not applicable
Estimated payment
$33,701/mo
Legal disclaimerAll calculations are estimates provided by StreetEasy for informational purposes only. Actual amounts or financing terms may vary. Please contact your mortgage provider for specifics.Taxes
No info
Tax abatement
No info
About
Seller’s agent
description
CONTRACT SIGNED
UES TOWNHOUSE SPLENDOR
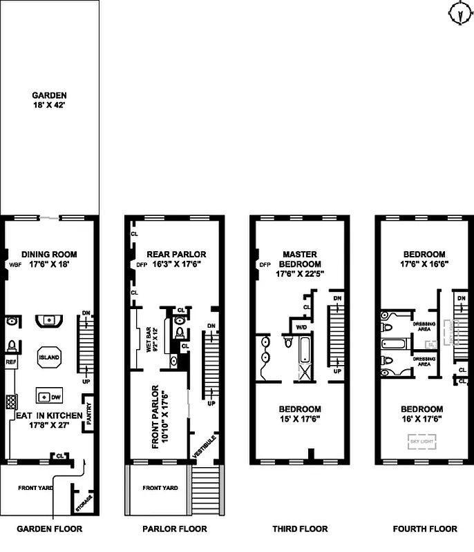
Located on a beautiful tree-lined block on East 95th Street, this 18.8 foot wide, 4-story brownstone went through a 3 year restoration bringing back the original details from 1899 and adding all the modern conveniences. It is beautifully restored and is in perfect move-in condition. Spanning 3500 sf of incredible detail, the home includes 4 bedrooms and 2 full bathrooms and 2 half bathrooms.
Policies
Sorry, policy info isn’t available right now. Check back later.
Home features
Private outdoor space
Garden, Terrace
Building amenities
Services and facilities
Storage space
Wellness and recreation
No info on wellness and recreation
Shared outdoor space
No info on shared outdoor space
About the building
178 East 95th Street
178 East 95th Street, New York, NY 10128
1 unit
4 stories
1899 built
For sale
0 available units for saleFor rent
0 available units for rentDocuments and permits
View documents and permitsProperty history
- Price Change: No changes
- Days on market: 114 daysThis is the number of days the listing has been on StreetEasy.
| Date | Price | Event |
|---|---|---|
1/29/2021 | $6,495,000 | |
10/30/2020 | $6,495,000 | |
9/27/2020 | $6,495,000 | Price decreased by 3% |
8/2/2020 | $6,700,000 | |
6/13/2016 | $6,000,000 | Sold by Brown Harris Stevens |
Past listing photos
Sign in to take a closer look at how this home compares to similar homes.
Explore Carnegie Hill
Transit
| Location | Distance |
|---|---|
6at 96th St | under 500 feet |
Qat 96th St | 0.16 miles |
6at 103rd St | 0.42 miles |
456at 86th St | 0.42 miles |
Qat 86th St | 0.47 miles |































































































































































































































