$6,300
For Rent
Base rent only. For total monthly price and additional fees, see .
Rented 7/24/2025
- ft²
5 rooms
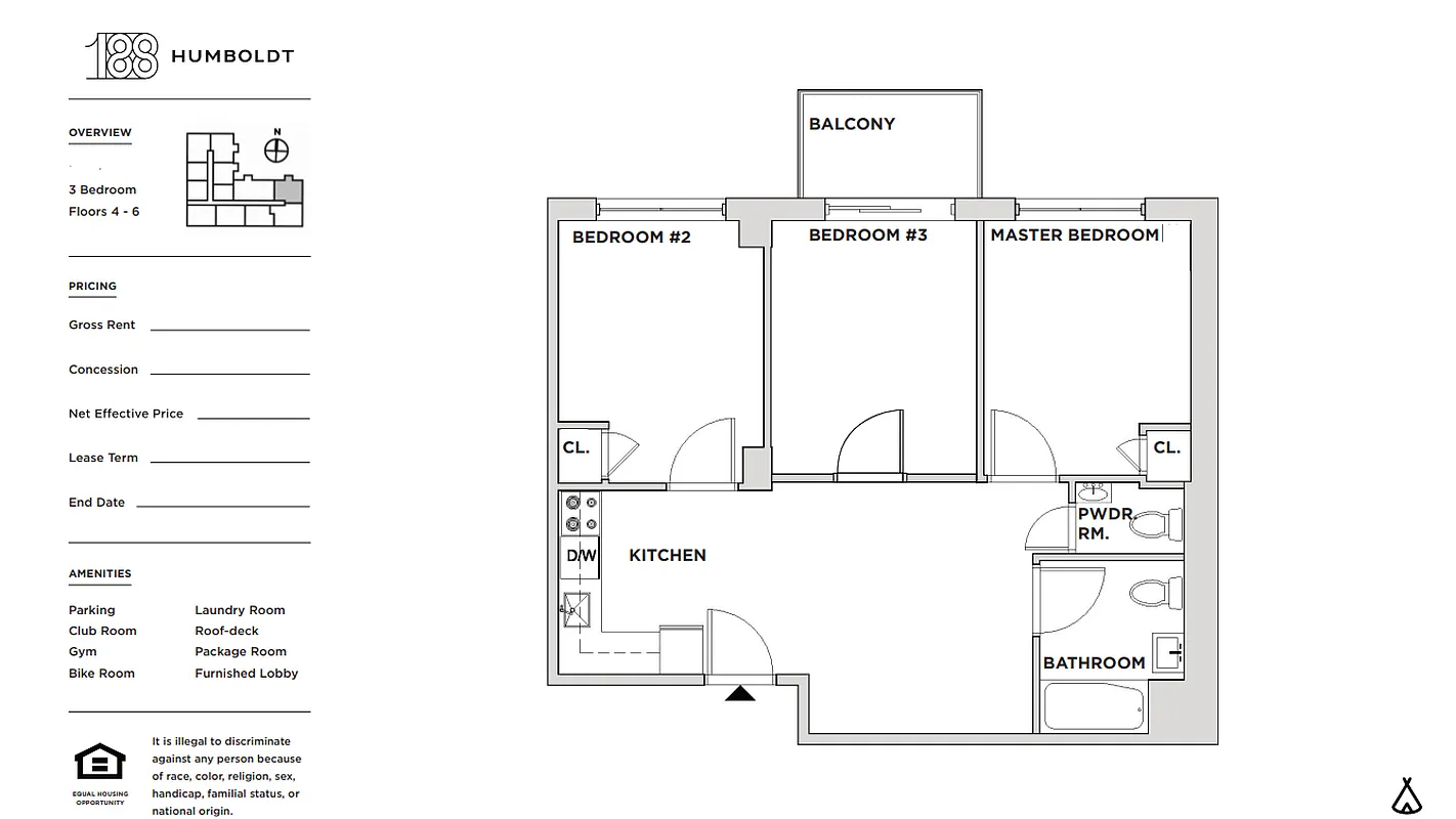
3 beds
1.5 baths
Rental unit
- Williamsburg
Under NYC law, you can't be charged a broker fee if you didn't hire a broker.
Listed By
This home has been saved by 10 users.
Listing by Nooklyn NYC LLC, Real Estate Principal Office, 199 Lee Avenue, Brooklyn, NY 11211
Unavailable
Rented on 7/24/2025
Days on market
2 days
Last price change
No changes
About
188 Humboldt is a seven-story boutique sun-filled residential building, with units ranging from studio, one bedroom, two bedroom and three bedroom apartments.
The building encourages a modern and energy-efficient lifestyle with amenities such as a co-working space, a fully-equipped gym, keyless entry (Latch), indoor parking, floor-to-ceiling windows, a laundry room, a top floor residents lounge, and...
Policies
Sorry, policy info isnât available right now. Check back later.
Home features
Central air
Dishwasher
Hardwood floors
Private outdoor space
Balcony, Roof rights
View
City, Skyline
Building amenities
Services and facilities
Bike room
Doorman
Virtual
Elevator
Laundry in building
Package room
Parking
Garage
Wellness and recreation
Gym
Shared outdoor space
Courtyard
Roof deck
About the building
188 Humboldt Street
188 Humboldt Street, Brooklyn, NY 11206
37 units
7 stories
2018 built
Property history
Prices shown are base rent only. For total monthly price and additional fees, see .
| Date | Base rent | Event |
|---|---|---|
7/24/2025 | $6,300 | Rented by Nooklyn NYC LLC |
6/26/2025 | $6,300 | In contract |
6/24/2025 | $6,300 | Listed by Nooklyn NYC LLC |
9/21/2022 | $5,700 | |
9/8/2022 | $5,700 |
Past listing photos
Sign in to take a closer look at how this home compares to similar homes.
Explore Williamsburg
Transit
| Location | Distance |
|---|---|
Lat Montrose Av | under 500 feet |
Lat Grand St | 0.28 miles |
JMat Lorimer St | 0.43 miles |
JMat Flushing Av | 0.48 miles |
Lat Graham Av | 0.49 miles |
About Williamsburg
Rental prices shown are base rent before any fees. Visit listings for cost and fees breakdown.
SalesMedian asking price
3 beds
$2.96M
RentalsMedian asking base rent
3 beds
$6,000
Williamsburg is Brooklyn's booming epicenter with a well-deserved and worldwide reputation for being an influential hub thanks to a thriving cultural scene. Here you will find eye-catching new construction, brownstones, and prewars sitting next to historic buildings on streets dotted with restaurants, art spaces, boutiques, and more. With a Manhattan-facing waterfront (hello Domino Park!) and its large weekend markets (we're talking about you, Smorgasburg, and Artists & Fleas), the neighborhood is ideal for strolling and people watching. Another fringe benefit is Williamsburg's proximity to Manhattan via the G, L, M, and N subway lines.
Learn more about WilliamsburgSimilar homes
Prices shown are base rent only and don't include any fees. Visit each listing to see a complete cost breakdown.
Similar Homes looks at ad spend and other factors like location, price, and number of beds and baths.













































































































