$570,000
For Sale
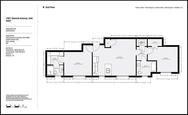
1,018 ft²
$559 per ft²
2 rooms
2 beds
2 baths
Other type
- Union City
Seller's agent
Hassan Farhat
Corcoran Sawyer Smith
Listing by Corcoran Sawyer Smith | MLS #: 260003847
Listing updated in the last 2 days
Common charges
Not applicable
Estimated payment
$2,895/mo
Legal disclaimerAll calculations are estimates provided by StreetEasy for informational purposes only. Actual amounts or financing terms may vary. Please contact your mortgage provider for specifics.Taxes
No info
Tax abatement
No info
About
Seller’s agent
description
Welcome to this luxurious two-bedroom, two-bathroom home featuring an open-concept layout in a boutique-style building located in the highly desirable Union City area, just 15 minutes from the heart of New York City. This stunning residence offers oversized windows that fill the home with natural light, new hardwood flooring, stainless steel appliances, quartz countertops, an in-unit washer and dryer, and central heating and cooling.
Policies
Sorry, policy info isn’t available right now. Check back later.
Home features
Central air
Dishwasher
Washer/dryer
Open houses
Preview the home in person and gather the details you need — no pressure.
12–2 PM ET
12–2 PM ET
Building amenities
Services and facilities
Elevator
Parking
Garage
Wellness and recreation
No info on wellness and recreation
Shared outdoor space
No info on shared outdoor space
About the building
1901 Summit Avenue
1901 Summit Avenue, Union City, NJ 07087
- units
- stories
- built
Property history
- Price Change: No changes
- Days on market: Listed todayThis is the number of days the listing has been on StreetEasy.
| Date | Price | Event |
|---|---|---|
3/5/2026 | $570,000 | Listed by Corcoran Sawyer Smith |
1/15/2019 | $449,000 | |
10/15/2018 | $449,000 |
Sign in to take a closer look at how this home compares to similar homes.
Explore Union City
Transit
| Location | Distance |
|---|---|
HBLRat Lincoln Harbor | 0.83 miles |
HBLRat 9th Street/Congress St | 1.18 miles |
HBLRat Bergenline Ave | 1.39 miles |
HBLRat Port Imperial | 1.47 miles |
HBLRat 2nd Street | 1.76 miles |


































































































































