$1,895,000
For Sale
Delisted 12/3/2025
3,495 ft²
$542 per ft²
16 rooms
8 beds
3.5 baths
Three-family home
- Crown Heights
Resale
Seller's agents
This home has been saved by 14 users.
Listing by Oxford Property Group, Limited Liability Broker, 401 New Karner Road, Albany, NY 12205
Common charges
Not applicable
Estimated payment
$10,092/mo
Legal disclaimerAll calculations are estimates provided by StreetEasy for informational purposes only. Actual amounts or financing terms may vary. Please contact your mortgage provider for specifics.Taxes
$259/mo
Tax abatement
No info
About
Seller’s agent
description
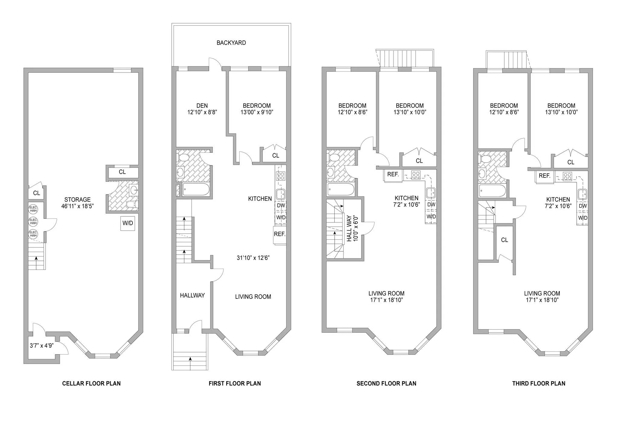
1906 Bergen Street – Fully Renovated 3-Family Investment in the Neighborhood of Crown Heights
Welcome to 1906 Bergen Street, a beautifully gut-renovated, nearly 20-foot-wide three-family townhouse situated on a quiet, tree-lined block in the vibrant neighborhood of Crown Heights.
This classic Brooklyn brick building has been completely reimagined with modern finishes, smart layouts, and strong income...
Policies
Sorry, policy info isn’t available right now. Check back later.
Home features
Central air
Dishwasher
Hardwood floors
Private outdoor space
Garden, Roof rights
Washer/dryer
Building amenities
Services and facilities
Laundry in building
Wellness and recreation
No info on wellness and recreation
Shared outdoor space
No info on shared outdoor space
About the building
1906 Bergen Street
1906 Bergen Street, Brooklyn, NY 11233
3 units
3 stories
1910 built
For sale
0 available units for saleFor rent
0 available units for rentDocuments and permits
View documents and permitsProperty history
- Price Change: No changes
- Days on market: 43 daysThis is the number of days the listing has been on StreetEasy.
| Date | Price | Event |
|---|---|---|
12/3/2025 | $1,895,000 | Delisted by Oxford Property Group |
10/21/2025 | $1,895,000 | Listed by Oxford Property Group |
Sign in to take a closer look at how this home compares to similar homes.
Explore Crown Heights
Transit
| Location | Distance |
|---|---|
ACat Ralph Av | 0.36 miles |
ACat Rockaway Av | 0.37 miles |
3at Sutter Av | 0.67 miles |
ACat Utica Av | 0.71 miles |
JZat Chauncey St | 0.73 miles |
About Crown Heights
Rental prices shown are base rent before any fees. Visit listings for cost and fees breakdown.
SalesMedian asking price
8 beds
$1.9M
Crown Heights has a lot going on. From the chaotic, commercial avenues of Nostrand and Utica to the wide, tree-lined esplanades of Eastern Parkway, the streets are always filled with locals shopping, catching up on the corner, and keeping tabs on neighbors. Walk down any of these streets and you're likely to find music playing from idling cars and bright Caribbean flags hanging from windows of apartment buildings. Every Labor Day, Crown Heights hosts the West Indian Day Parade, one of the city's largest annual street festivals which draws thousands of people from around the city and the world. The mix of people in such close proximity makes Crown Heights a fascinating microcosm of New York City. Living here, you'll be surrounded by a community with deep roots and rich heritage.
Learn more about Crown Heights












































































































































