- ft²
3 rooms
1 bed
1 bath
Co-op
- Upper East Side
Resale
reported sale
Sold on 9/17/2021
Not yet verified by closing records
Seller's agents
This home has been saved by 192 users.
Listing by Compass, Corporate Broker, 851 Madison Avenue, New York, NY 10021
Maintenance fees
$2,817/mo
Estimated payment
$5,769/mo
Legal disclaimerAll calculations are estimates provided by StreetEasy for informational purposes only. Actual amounts or financing terms may vary. Please contact your mortgage provider for specifics.Taxes
Included in maintenance fees
Tax abatement
No info
About
Seller’s agent
description
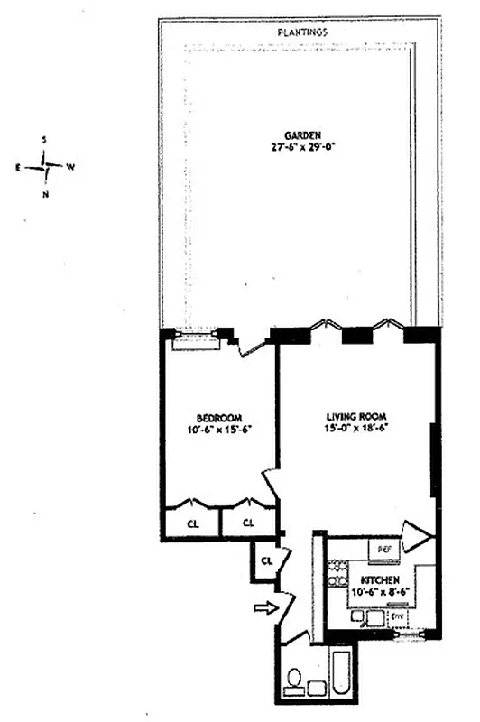
Steps from Central Park and the Metropolitan Museum, this elegant one-bedroom apartment is located in an 1890 historic townhouse with limestone and Flemish brick facade. The apartment's huge, landscaped private garden has a brick terrace for outdoor dining, entertaining and an ivy wall to ensure a sense of privacy. The garden is accessed off the living room through a double set of floor-to-ceiling French doors.
Policies
Pets allowed
Cats and dogs allowed
Pied-a-terre allowed
Home features
Central air
Dishwasher
Fireplace
Decorative
Hardwood floors
Private outdoor space
Garden
View
Garden
Building amenities
Services and facilities
Doorman
Elevator
Laundry in building
Wellness and recreation
No info on wellness and recreation
Shared outdoor space
Courtyard
About the building
20 East 84th Street
20 East 84th Street, New York, NY 10028
25 units
6 stories
1910 built
For sale
0 available units for saleFor rent
0 available units for rentDocuments and permits
View documents and permitsProperty history
- Price Change: ↓ $96,000 (-10.7%) on 1/27/21
- Days on market: 251 daysThis is the number of days the listing has been on StreetEasy.
| Date | Price | Event |
|---|---|---|
9/17/2021 | $799,000 | Sold by Compass |
4/5/2021 | $799,000 | In contract |
1/27/2021 | $799,000 | Price decreased by 11% |
10/26/2020 | $895,000 | Price decreased by 10% |
7/28/2020 | $995,000 | Listed by Compass |
Past listing photos
Sign in to take a closer look at how this home compares to similar homes.
Explore Upper East Side
Transit
| Location | Distance |
|---|---|
456at 86th St | 0.23 miles |
6at 77th St | 0.4 miles |
Qat 86th St | 0.45 miles |
BCat 86th St | 0.62 miles |
BCat 81st St–Museum of Natural History | 0.63 miles |
About Upper East Side
Rental prices shown are base rent before any fees. Visit listings for cost and fees breakdown.
SalesMedian asking price
1 bed
$815K
RentalsMedian asking base rent
1 bed
$4,250
When many people think of the Upper East Side, they think of a quiet, tree-lined urban expanse filled with posh residents and purebred dogs. There's some reality behind the neighborhood's old-money image: The blocks between Park and Fifth avenues are home to some of Manhattan's wealthiest residents, many of whom dwell in stately co-ops or sleek new condos overseen by stiffly collared doormen.
But there's a lot more happening on the Upper East Side. Museum Mile throngs with tourists, street artists, and lovers of the arts, drawn to its abundance of high culture. And the eastern side of the neighborhood, toward Yorkville, exhibits a less rarefied character. Second Avenue is home to sports bars, pubs, and some excellent restaurants. A trendy renaissance is in the offing here, sparked by young professionals drawn by some surprisingly good housing prices (for Manhattan). The avenues and commerce-lined thoroughfares can be hectic, but many streets on the Upper East Side are blessedly quiet — just one more way in which this oft-stereotyped neighborhood can be a surprise.





















































































