1,208 ft²
$889 per ft²
3 rooms
1 bed
1.5 baths
Condo
- Financial District
Resale
recorded sale
Sold on 10/8/2024
Verified by closing records
Last listed for $1,080,000
Seller's agent
This home has been saved by 22 users.
Listing by Luca Paci Real Estate, Limited Liability Broker, 115 Broadway, New York, NY 10006
Common charges
$1,529/mo
Estimated payment
Taxes
$1,588/mo
Tax abatement
No info
About
Seller’s agent
description
Welcome to your new home designed by the world-renowned Armani Casa.
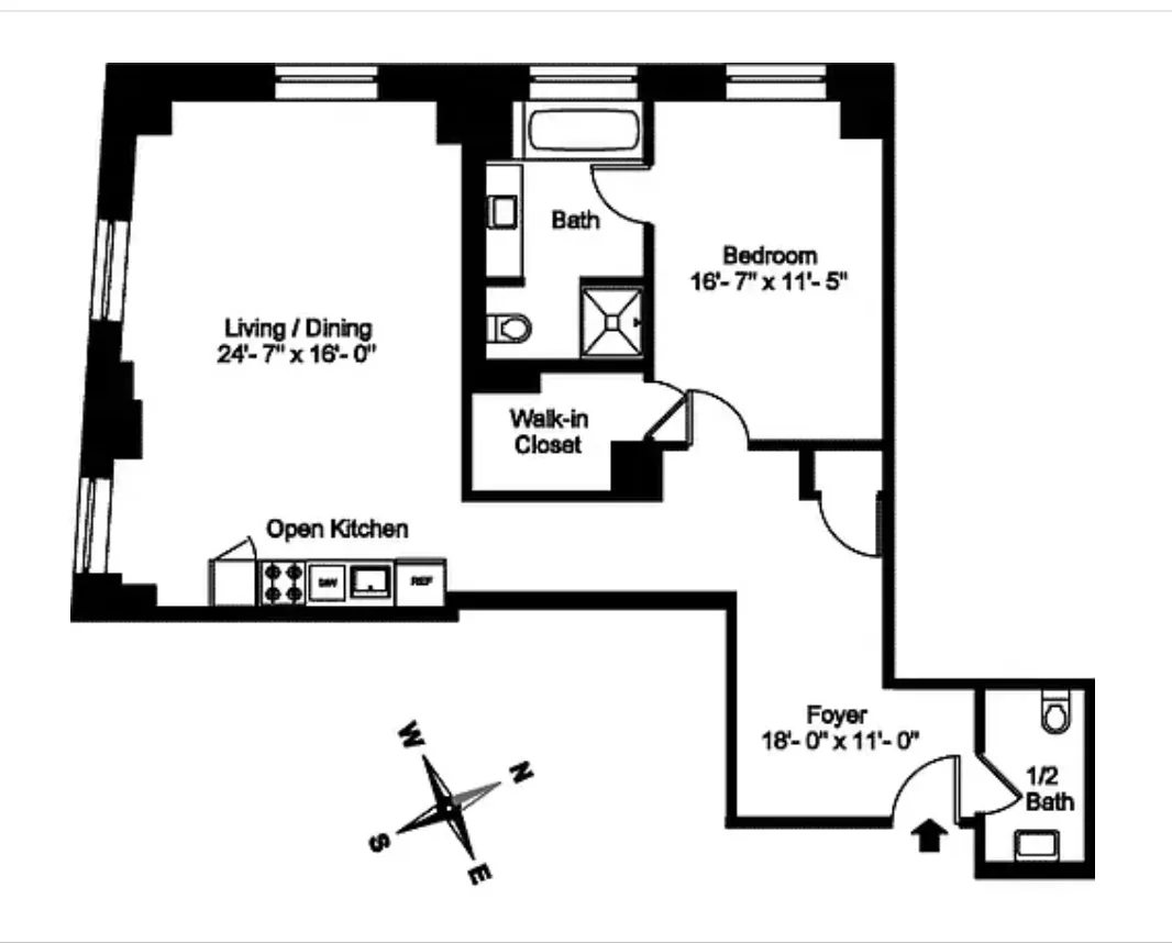
The spacious 1,208 sq ft corner one-bedroom, 1.5-bathroom apartment greets you with a grand foyer that leads into a sunlit living room. This room features large windows and high beamed ceilings, creating a bright and airy atmosphere.
The south-facing windows offer iconic and protected New York Stock Exchange views.
Policies
Pets allowed
Cats and dogs allowed
Home features
Dishwasher
Hardwood floors
View
City
Washer/dryer
Building amenities
Services and facilities
Bike room
Concierge
Doorman
Full-time, Virtual
Elevator
Live-in super
Package room
Storage space
Wellness and recreation
Children's playroom
Gym
Media room
Swimming pool
Shared outdoor space
Deck
Roof deck
About the building
20 Pine - The Collection
20 Pine Street, New York, NY 10005
408 units
38 stories
1928 built
For sale
15 available units for saleFor rent
7 available units for rentDocuments and permits
View documents and permitsProperty history
- Price Change: No changes
- Days on market: 9 daysThis is the number of days the listing has been on StreetEasy.
| Date | Price | Event |
|---|---|---|
10/8/2024 | $1,075,000 | Sold by Luca Paci Real Estate |
8/9/2024 | $1,080,000 | In contract |
7/31/2024 | $1,080,000 | Listed by Luca Paci Real Estate |
3/13/2024 | $1,250,000 | |
2/21/2024 | $1,250,000 | Price decreased by 7% |
Past listing photos
Sign in to take a closer look at how this home compares to similar homes.
Explore Financial District
Transit
| Location | Distance |
|---|---|
JZat Broad St | under 500 feet |
23at Wall St | under 500 feet |
45at Wall St | under 500 feet |
ACJZ2345at Fulton St | 0.14 miles |
RWat Rector St | 0.15 miles |
About Financial District
Rental prices shown are base rent before any fees. Visit listings for cost and fees breakdown.
SalesMedian asking price
1 bed
$950K
RentalsMedian asking base rent
1 bed
$5,012
During the day, the Financial District can be chaotic with an influx of office workers and tourists attracted to the many historical sites, museums, and phenomenal views the neighborhood offers. After the workday crowds clear, the neighborhood becomes quiet and calm. Nightlife is confined to a few small areas, as most residents return to their amenity-rich buildings and rooftop patios.
Learn more about Financial District



























































































































































